Ma

El vínculo entre la obra de Kazuo Shinohara y el Shodo

Ma
the bond between Kazuo Shinohara’s work and Shodo

Ma
O vínculo entre a obra de Kazuo Shinohara e o shodo


DOI: https://doi.org/10.18861/ania.2021.11.2.3132

Mónica Verdejo Ruiz
Universidad Politécnica de Madrid
ORCID: https://orcid.org/0000-0001-8875-5886



Resumen

En Japón, tradicionalmente las artes como la pintura, la música, el teatro y, en especial la caligrafía –shodo–, comparten una constante esencial: el no-ser como agente compositivo en oposición al ser. En términos matéricos esto puede expresarse en la dualidad interdependiente lleno-vacío. El término nipón ma implica tanto ese vacío en sí mismo -como intervalo-, como la simultánea percepción de lleno y vacío. Su vinculación con la percepción espacial ha sido objeto de interés durante las últimas décadas. Sin embargo, escasean las declaraciones en cuanto a la materialización del ma por medio de la construcción física. Por ello, la presente investigación persigue descifrar los medios a través de los cuales dicha dualidad se manifiesta en la arquitectura.

Para ello se analizarán dos obras proyectadas por Kazuo Shinohara, defensor de la esencia arquitectónica tradicional nipona y la condición artística de la casa. El estudio se centra en los planos de la Casa Paraguas y la Casa en una Calle Curvada, redibujados especialmente para esta investigación siguiendo un código binario que distingue el lleno, en negro, del vacío, en blanco.

A partir de los resultados obtenidos, se infiere que Shinohara intencionadamente condensa las actividades domésticas, liberando el resto del interior de compartimentaciones y configurando así un gran espacio vacío en el que aparecen elementos estructurales aislados, cuya función consiste en tensionar el vacío a través de la variabilidad en las distancias con respecto de la envolvente.

Ambas estrategias –los distintos grados de compartimentación, y por tanto, de condensación del lleno, y la tensión del vacío a través de elementos aislados– son igualmente apreciables en las obras de shodo. Y a pesar de las fundamentales diferencias entre ambas disciplinas, más allá de una azarosa coincidencia, tales similitudes apuntan hacia una lógica compositiva común, que encuentra su centro en la configuración del ma.

Palabras clave: Vacío, ma, shodo, Kazuo Shinohara, dualidad, lleno-vacío, espacio despilfarrado, arte, lógica compositiva, tensión espacial, grados de compartimentación



Abstract

In Japan, traditionally, the arts as painting, music, theatre and, exceptionally calligraphy –shodo-, share an essential constant: not-being as compositional agent opposed to being. In terms of materiality, this can be expressed by interdependent duality between fullness and emptiness. Japanese term ma implies this void in itself –as interval-, as well as the simultaneous awareness of  both: full and void. Its linkage with spatial perception has been an object of interest over the last decades. Nevertheless, statements regarding the materialization of ma through physical construction are scarce. For that reason, this research pursues the decryption of the means by which this duality emerges in architecture.
For that purpose, two works projected by Kazuo Shinohara, well known advocate of traditional Japanese architectonic essence and of the artistic status of the house, will be analysed. The investigation focuses on the plans of Umbrella House and House in a Curved Road, which have been redrawn specifically, employing a binary code in order to distinguish full, in black, from void, in white.
From the results obtained, it is inferred that Shinohara intentionally condenses household activities, releasing the remaining interior space from partitioning and thus generating a large void space inside which isolated structural elements arise to create spatial tension through the inconstant distances between them and the enclosure.
Both strategies –the varying degrees of compartmentalization, and thus of fullness condensation, just as the void tensioning due to isolated elements- are equally visible in shodo works. And, despite the underpinning differences between these two disciplines, beyond being a haphazard coincidence, these similarities point to a common compositional logic that finds its core at the configuration of ma.

Keywords: Void, ma, shodo, Kazuo Shinohara, duality, full-void, wasted space, art, compositional logic, spatial tension, degrees of compartmentalization

Resumo

No Japão, tradicionalmente, as artes como a pintura, a música, o teatro e, especialmente, a caligrafia – shodo –, compartilham uma constante essencial: o não-ser como agente compositivo em oposição ao ser. Em termos matéricos, isto pode ser expresso na dualidade interdependente cheio-vazio. A palavra japonesa ma implica tanto esse vazio em si mesmo – como intervalo –, como a percepção simultânea de cheio e vazio. Seu vínculo com a percepção espacial foi objeto de interesse durante as últimas décadas. No entanto, são escassas as declarações quanto à materialização do ma por meio da construção física. Por isso, esta pesquisa busca decifrar os meios através dos quais essa dualidade se manifesta na arquitetura.
Para tal, serão analisadas duas obras projetadas por Kazuo Shinohara, defensor da essência arquitetônica tradicional japonesa e da condição artística da casa. O estudo se foca nos planos de duas casas: Umbrella House e Casa numa Rua em Curva, redesenhados especialmente para esta pesquisa seguindo um código binário que diferencia o cheio, em preto, do vazio, em branco.
A partir dos resultados obtidos, infere-se que Shinohara condensa intencionalmente as atividades domésticas, liberando o resto do espaço interno de compartimentações e configurando, assim, um grande espaço vazio no qual aparecem elementos estruturais isolados, cuja função consiste em tensionar o vazio através da variabilidade nas distâncias em relação à envolvente (fachada).
Ambas as estratégias – os diversos graus de compartimentação e, portanto, de condensação do cheio, e a tensão do vazio por meio de elementos isolados – podem ser igualmente apreciadas nas obras de shodo. E apesar das diferenças fundamentais entre as duas disciplinas, além de uma desventurada coincidência, essas semelhanças apontam para uma lógica compositiva comum, que encontra seu centro na configuração do ma.

Palavras-chave: vazio, ma, shodo, Kazuo Shinohara, dualidade, cheio-vazio, espaço esbanjado, arte, lógica compositiva, tensão espacial, graus de compartimentação



Shodo y vacío
No es casualidad que una de las características que más sorprenda al espectador occidental al contemplar una pintura japonesa tradicional, como uno de los numerosos trípticos de Sakai Hōitsu (Figura 1), sea la gran proporción de lienzo que queda en blanco. Esta sensación es, si cabe, más pronunciada en el caso del shodo, el arte de la caligrafía japonesa.

Figura 1: MOA Museum of Art

Fuente: https://artsandculture.google.com/asset/snow-moon-and-flowers-sakai-hoitsu/0wEv1-oTzP4_3Q

Quizá a primera vista pueda parecer que hay una gran cantidad de espacio sobrante o desperdiciado en la obra. Sin embargo, en realidad se trata de un espacio vacío activo (Sato, 2014), en tanto que contrasta y dialoga con los trazos oscuros, y con ellos forma una unidad indivisible. La belleza del shodo reside en el trazo del pincel y el color de la tinta, pero también en el contraste entre las líneas y el espacio vacío (Sato, 2014). Ambos, trazo y vacío, constituyen dos elementos de naturaleza opuesta, interdependientes e igualmente importantes, cuya sinergia juega un papel vital en la caligrafía japonesa (Nakashima, 2007). Como puede apreciarse en la obra de Eishi Sakuta (Figura 2), en una buena obra de shodo, el diálogo entre trazo y vacío persigue el equilibrio a través de la estructura y calidad de los trazos, las distancias entre ellos y el empleo de variaciones, evitando conscientemente la repetición, la homogeneidad y la simetría.

Figura 2: Eishi Sakuta

Fuente: Sato, Shozo. The Quiet Art of Japanese Zen Calligraphy, Learn the Wisdom of Zen Through Traditional Brush Painting. Tuttle Publishing, 2014. p. 47



La sinergia entre opuestos que se alcanza en la obra de shodo enlaza directamente con el principio de dualidad armónica que subyace en la psique oriental, y cuyo mayor exponente se encuentra en las nociones taoístas de yin y yang; las dos fuerzas complementarias en permanente equilibrio dinámico que constituyen el mundo. En el siguiente fragmento del texto Tao Te Ching, Lao Tse señala la oposición y complementariedad entre el vacío –el no-ser– y el objeto –el ser–.

Treinta rayos convergen en el cubo de una rueda,

y merced a su vacío,

el carro cumple su misión.

Modelando la arcilla se hacen las vasijas,

y merced a su vacío,

las vasijas de arcilla cumplen su misión.

Horádanse los muros con puertas y ventanas,

y merced a su vacío,

la casa cumple su misión.

Y así, del ser (you) depende el uso,

y del no-ser (wu), que cumpla su misión.

(Preciado, 2006)



De ello se deriva que el ser y el no-ser, las cosas y el vacío, se conciben como los dos ingredientes interdependientes que configuran la realidad física. Y por tanto no solo las cosas, sino también el vacío se posiciona como sujeto activo en dicha configuración. Porque el vacío no es concebido como la ausencia de algo, sino más bien como la plenitud del no-ser (Calduch, 2001).

El ser y el no-ser conviven, y juntos dan forma a la dimensión material, al igual que el trazo y el espacio blanco se entrelazan y componen la obra de shodo.



Descifrando ma
La noción de vacío como no-ser opuesto al ser, arraigó en la cultura nipona y se expresó mediante el ideograma (kuu).

Resulta pertinente señalar en este punto, que el término空間 (kuukan) fue acuñado en Japón a finales del siglo XIX para dar nombre a un concepto desconocido procedente de Occidente: el espacio. Esta nueva palabra se compone de los ideogramas de vacío (kuu) y lugar (ma); por lo que en el idioma japonés, el espacio occidental significa literalmente “lugar vacío” (Saito, 2014).

El ideograma (ma) condensa gráficamente una idea sumamente compleja y resbaladiza relacionada con la percepción espaciotemporal en Japón, y da pie a numerosas interpretaciones no carentes de ambigüedad. Con el fin de clarificar su significado, Günter Nitschke analizó minuciosamente diversas implicaciones de dicho concepto, y de su trabajo se infiere el entendimiento de ma como una “conciencia de lugar” vinculada al paso del tiempo (1966).

Simultáneamente, ma remite al intervalo entre sucesos –tiempo– o cosas –materia–; designa el hueco en el que no ocurre nada, es decir, el no-ser existente entre los seres (Nute, 1999). Pero no sólo denota la distancia entre dos entes, sino también una percepción simultánea de ambos polos como unidades individuales. Por lo tanto, ma implica la apreciación simultánea de lo que es y lo que no es: es decir, permite concebir intelectualmente a un mismo tiempo las cosas y el vacío (Nitschke, 1993).

Las implicaciones de ma se manifiestan en artes japonesas como el teatro, la música, la pintura o la caligrafía a través de la armonía entre opuestos –sonido-silencio, movimiento-quietud, trazo-blanco-. Pero es en el campo de la arquitectura donde su efecto cobra mayor relevancia debido a que también establece una profunda relación con la percepción espacial en el tiempo. De hecho, según afirma Nitschke, “la arquitectura es el arte de crear un ma particular en la dimensión física” (1966).

Durante las últimas décadas parece haberse avivado un cierto interés teórico sobre este concepto. Sin embargo, la profundidad y alcance de tales reflexiones son, en la mayoría de los casos, bastante limitados. Escasean especialmente los escritos acerca de la materialización del ma en la arquitectura, y en todo caso, no abordan el tema de forma clara y directa. Es por ello que el presente artículo pretende indagar en las implicaciones compositivas de ma en la arquitectura japonesa, lo que se hará a través del estudio concreto de dos obras de Kazuo Shinohara.



Kazuo Shinohara. Tradición y arte

Shinohara desarrolló la mayor parte de su obra durante la segunda mitad del siglo XX, en oposición a la influencia moderna europea, buscando en las raíces de la arquitectura nipona su auténtica naturaleza para, una vez identificada, extraer los conceptos primordiales a partir de los cuales elaborar una arquitectura nueva y personal pero verdaderamente japonesa. De sus investigaciones se deduce que era conocedor y reivindicador de la noción de vacío anteriormente referida. De hecho, en sus escritos posicionaría la “no-existencia del espacio” como el motivo fundamental de la belleza que ostentan las grandes obras de arquitectura japonesa tradicional, como Villa Katsura y el templo Kinkaku-jii.

Fruto de sus estudios sobre la tradición arquitectónica nipona, Shinohara llegó a comprender que una de las características esenciales de la composición espacial japonesa habría sido la irracionalidad, manifestada físicamente a través del “espacio despilfarrado” (“wasted space”, muda na kūkan 無駄な空間) (Daniell, 2018). El cual, cargado de un importante valor simbólico y notablemente alejado de la lógica funcionalista moderna, constituiría un factor determinante en el dimensionamiento de las estancias en la arquitectura tradicional.

En consecuencia, la proporción de los espacios no estaba condicionada en exclusiva por su utilidad, sino también, y en gran medida, por la apreciación simbólica y estética del espacio como vacío. Así, el “espacio despilfarrado” se asumiría como un requisito estético, no funcional, que acerca la casa al campo del arte más que al ámbito pragmático de la edificación.

En verdad, Shinohara defendió incansablemente a través de sus textos, discursos y práctica profesional, la noción de “la casa como obra de Arte”ii, declarando la necesidad de atender a las irracionales necesidades estéticas en el proceso de diseño, haciendo uso para ello del “despilfarro” (wastefulness) (Daniell, 2018). Es a través de este concepto del “espacio despilfarrado” que la obra de Shinohara se acerca de forma decisiva a las artes japonesas como la caligrafía o la pintura, tanto en el empleo del vacío como agente activo como en su particular lógica compositiva en búsqueda del equilibrio entre lleno y vacío.

Con el fin de garantizar la minuciosidad en el análisis, al tiempo que evitar un excesivo particularismo, se han seleccionado dos obras residenciales entre cuyos desarrollos transcurrieron casi dos décadas, y que corresponderían al primer y tercer estilo del arquitecto, según estableció el mismo Shinoharaiii.

El estudio se realiza a través del redibujado de las plantas y secciones originales, transmutando su contenido al código binario de llenos y vacíos, lo que facilitará la observación de las relaciones entre ambos. Se representarán como llenos los elementos estructurales fundamentales, tanto perimetrales como interiores, así como las divisiones verticales y puertas que por lo general permanecen cerradas y constituyen límites espaciales. Las ventanas y paneles correderos cuya vocación es conectar con el exterior, antes que limitar, aparecerán como aberturas en la envolvente.



Casa paraguas 1961

Aun siendo la vivienda más pequeña diseñada por Shinohara, en ella no renunció a la manifestación del vacío. Como puede apreciarse en los planos originales (Figura 3), los espacios servidores –aseo, baño y cocina- son comprimidos contra el margen izquierdo, liberando el resto del interior a los espacios servidos, desocupados o con escasos muebles bajos.

Figura 3: Casa paraguas (1961)

Fuente: https://misfitsarchitecture.com/2014/07/20/kazuo-shinoharas-houses/umbrella-house-1961/

Conviene destacar, en el dibujo de la sección (Figura 4), el panel vertical que cuelga de las vigas y separa la cocina de la sala de estar. Este elemento, a pesar de su extrema delgadez, influye de forma decisiva en la percepción del interior. Tanto es así que aparece sombreado, y precisamente por ello se ha incluido en esta representación (Figura 5).

Figura 4:Casa paraguas, sección (1961)

Fuente: https://www.tumgir.com/tag/kazuo%20shinohara



Figura 5. Casa paraguas, sección 2 (1961)

Fuente: Elaboración propia

Una observación detenida de la planta (Figura 6) desvela la concatenación de espacios con distinto grado de concentración del lleno. Comenzando por el extremo superior izquierdo, las sucesivas compartimentaciones menudas fragmentan el vacío y ensalzan el lleno.

Figura 6: Casa paraguas, planta (1961)

Fuente: Elaboración propia



Inmediatamente debajo le sigue una zona algo más diáfana, delimitada en sus cuatro laterales pero no completamente aislada del espacio más amplio, a su derecha: la gran estancia doble –dividida mediante un pequeño escalón y unas paredes correderas– acotada sólo en parte, pues se abre en tres de sus lados para conectar con el vacío exterior.

El vacío se evidencia a partir de los elementos construidos, y la relación establecida entre ellos determina su forma y su carácter. Por ejemplo, las grandes aberturas de la gran sala permiten que el vacío interior se funda con el exterior, impidiendo diferenciar cuándo termina uno y comienza el otro. Al contrario que ocurre en el extremo superior izquierdo, donde las múltiples divisiones encierran y demarcan claramente el vacío en pequeñas porciones geométricas.

No obstante, en el momento en que se cierran las paredes correderas, se reafirman los límites y el vacío queda atrapado en el interior (Figura 7). Es entonces cuando entran en acción dos elementos singulares en la Casa Paraguas: el panel colgado y el pilar. De no existir éstos, la casa quedaría compartimentada en tres espacios mudos y estáticos. Sin embargo, su estratégica posición con respecto a los límites perimetrales genera tensiones que evidencian el vacío como intervalo.

Figura 7: Casa paraguas, planta (1961)

Fuente: Elaboración propia



En efecto, el panel divide la mitad inferior de la casa en dos espacios desiguales y se dispone ligeramente desplazado hacia abajo, más cerca del muro exterior que de la corredera interior. Esta decisión hace que las distancias entre el panel y las paredes perpendiculares a él sean distintas; el vacío se comprime de forma diferente a derecha e izquierda del panel. De igual modo, el pilar se relaciona de manera distinta con los cuatro lados del perímetro, de nuevo a causa de las diferentes distancias entre ellos. Al contrario que el panel, el pilar carece de direccionalidad y esto genera una mayor sensación de dinamismo en torno a él. El pilar es el contrapunto de la sala, el elemento que evidencia el vacío tensionándolo.

En definitiva, el vacío es aquello que existe entre los llenos, toma forma gracias a ellos y se evidencia a través de las diferentes distancias que los separan.

De igual modo sucede en la obra caligráfica de Zakyu-An Senshō (Figura 8), donde los trazos oscuros al mismo tiempo delimitan y conforman el espacio blanco en función de las inconstantes separaciones, los intervalos variables en los que el pincel no toca el papel. Como en la Casa Paraguas, el vacío adopta distintas configuraciones: bien en pequeñas porciones compartimentadas, bien en indivisible conexión con el vacío circundante, o bien tensionado por la cercanía variable entre un trazo y otro.

Figura 8: Obra caligráfica de Zakyu-An Senshō

Fuente: Sato, Shozo. The Quiet Art of Japanese Zen Calligraphy, Learn the Wisdom of Zen Through Traditional Brush Painting. Tuttle Publishing, 2014. p. 106

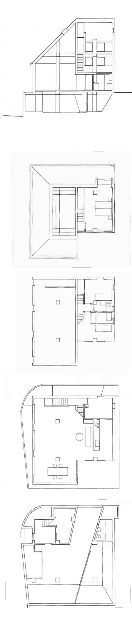
Casa en una calle curvada 1978

A diferencia de la anterior, esta vivienda se organiza en cuatro alturas, manteniéndose constantes en todas ellas cuatro grandes pilares cuadrados equidistantes. Al llegar a la zona más elevada, dos de ellos se ramifican en forma de cruz, extendiéndose hasta cortar con la envolvente (Figura 9).

Figura 9: Planimetría de Casa en una calle curvada (1978)

Fuente: http://hiddenarchitecture.net/house-in-curved-road/)

Tal y como muestran los dibujos sintetizados (Figura 10), en cada uno de los niveles la configuración de los elementos construidos –y, en consecuencia la del vacío– es distinta. Sin embargo, se aprecian similitudes más allá de la permanencia de los pilares.

Figura 10. Planos redibujados de Casa en una calle curvada (1978)

Fuente: Elaboración propia

En primer lugar, en las cuatro plantas se advierte la oposición entre un espacio compartimentado y otro diáfano. Mientras que en planta baja esta distinción se produce entre parte superior e inferior, en las restantes, vinculadas en altura, sucede entre derecha e izquierda. Lo mismo ocurre en la sección, donde el amplio espacio de triple altura contrasta frente a los espacios más reducidos y fraccionados, acordes a una escala más doméstica. De ello se extrae que existe una dualidad constante entre opuestos: un espacio dominado por el lleno y otro protagonizado por el vacío.

En segundo lugar, dicho espacio vacío no se encuentra completamente desocupado, sino que es habitado y activado por la gran estructura de hormigón. Al igual que ocurría con el pilar y el panel suspendido, las cruces tensionan el vacío a través de la relación con los límites construidos, a través de los intervalos desiguales entre los dos llenos: estructura y envolvente.

En tercer y último lugar, y a diferencia del caso anteriormente estudiado, las aberturas de la envolvente son puntuales y considerablemente más estrechas. Ambos factores reducen en gran medida la posibilidad de conexión entre el vacío interior y el exterior; provocando que el vacío, en lugar de entrar, se genere dentro, en torno a la gran estructura cruciforme, y parezca escurrirse hacia fuera a través de los huecos. La casa no persigue una relación directa con el exterior, sino más bien el ensimismamiento en la contemplación del vacío inherente.

De nuevo, tanto la contraposición entre zonas más llenas y más vacías, como la tensión producida por llenos puntuales, también pueden observarse en obras de shodo como la de Shinya Fujiwara (Figura 11). En ella, la configuración de los ideogramas establece distintos grados de condensación del lleno. Pero además, y a diferencia de la obra de Zakyu-An Senshō, su mayor grado libertad compositiva permite advertir de forma clara el potencial de los trazos aislados como agentes activadores del vacío en torno suyo.

Figura 11: Obra de Shinya Fujiwara

Fuente: Sato, Shozo. The Quiet Art of Japanese Zen Calligraphy, Learn the Wisdom of Zen Through Traditional Brush Painting. Tuttle Publishing, 2014. p. 23



Conclusiones

Como se ha mostrado en el reciente análisis, en ambas casas se distinguen zonas con diferentes grados de compartimentación. Fundamentalmente, las actividades domésticas se condensan en espacios repetidamente fraccionados y de reducida dimensión, en claro contraste con el amplio espacio diáfano que ocupa el resto de la vivienda y constituye el “espacio despilfarrado” (“wasted space”) anteriormente mencionado.

Es en este extenso lugar habitado por el vacío y colmado de simbolismo, donde aparecen los elementos estructurales aislados: un pilar y una pantalla en el primer caso y una doble estructura cruciforme en la segunda. Se trata de los llenos puntuales que tensionan y evidencian el vacío a través de las diferentes distancias entre ellos y la envolvente. Dicho papel activador de la estructura se aprecia con mayor claridad durante la segunda mitad de la trayectoria de Shinohara –al que pertenece la Casa en una Calle Curvada–, cuando la obra “tiende hacia unas experiencias dinámicas alrededor de la estructura de la casa” (Massip-Bosch, 2016). Es entonces cuando la estructura asimila la gran escala del gran “espacio despilfarrado” y se autoproclama como su protagonista.

Gracias a la presencia de tal estructura y su táctica ubicación con respecto al perímetro circundante, el vacío se revela como intervalo y se hace perceptible. Así es como a través de la arquitectura se construye el ma en la dimensión física.

Por otra parte, el estudio también ha revelado ciertas similitudes entre los planos arquitectónicos y las obras caligráficas en cuanto al uso del lleno y el vacío.

No obstante, los condicionantes de la arquitectura, como la delimitación de un espacio interior protegido, no existen en el arte de la caligrafía. En éste, además, la diferencia de grosor en el trazo es capaz de aumentar o disminuir el carácter masivo, y por tanto, de graduar su intensidad como lleno en la composición de una manera más expresiva que en la arquitectura.

Si bien un salto dimensional insalvable –además de funcional y de tamaño– separa la arquitectura de Kazuo Shinohara del shodo, lo cierto es que la manifiesta sinergia entre lleno y vacío indica que comparten una misma lógica compositiva: la configuración del ma.



Referencias

Calduch, J. (2001). Temas de Composición Arquitectónica: Espacio y Lugar. Editorial Club Universitario.


Daniell, T., Weaver, T., Cook, P., & In Handelman, S. (2018). An anatomy of influence.

Jacquet, B. (2006). The Influence of Milieu in the Residential Architecture of Shinohara Kazuo. Journal of Asian Architecture and Building Engineering 5.1. 15-20. doi:10.3130/jaabe.5.15

Massip-Bosch, E. (2016). Emotion devices. The role of concrete frame structures in the architecture of Kazuo Shinohara. EN BLANCO. Revista de Arquitectura 8.20. 66-74. doi:10.4995/eb.2016.5257

Massip-Bosch, Enric. (2016). Five forms of emotion: Kazuo Shinohara and the house as a work of art [Tesis de doctorado, Universitat Politècnica de Catalunya] TDX - Universitat Politècnica de Catalunya.

Nakashima, T. (2007). The synergy of positive and negative space in Japanese calligraphy. J. Kinki Health Welfare Univ 8. 113-119.


Nitschke, G. (1993). From Shinto to Ando: studies in architectural anthropology in Japan. Academy Editions.

Nitschke, G. (1966). 'MA':The Japanese sense of Place. Architectural Design 36. 116-156.


Nute, K. (1999). ’Ma’ and the Japanese sense of place revisited: by way of cyberspace.  Online proceedings of the Third International Symposium on Asia Pacific Architecture. Challenging New Technologies to Fulfill the Human Spirit. 7 (no. 9).

Preciado Idoeta, I. (2006). Tao Te Ching, Los libros de Tao. Editorial Trotta.


Saito, K. E. (2014). Arquitectura y ambiente. Una mirada renovada sobre los conceptos Ku, Oku y Ma. Kokoro: Revista para la difusión de la cultura japonesa 14. 2-13.


Sato, S. (2014). The Quiet Art of Japanese Zen Calligraphy, Learn the Wisdom of Zen Through Traditional Brush Painting. Tuttle Publishing.



Fuentes de las ilustraciones

Figura 1. MOA Museum of Art (https://artsandculture.google.com/asset/snow-moon-and-flowers-sakai-hoitsu/0wEv1-oTzP4_3Q)

Figura 2. Sato, Shozo. The Quiet Art of Japanese Zen Calligraphy, Learn the Wisdom of Zen Through Traditional Brush Painting. Tuttle Publishing, 2014. p. 47

Figura 3. (https://misfitsarchitecture.com/2014/07/20/kazuo-shinoharas-houses/umbrella-house-1961/)

Figura 4. (https://www.tumgir.com/tag/kazuo%20shinohara)

Figura 5. Elaboración propia

Figura 6. Elaboración propia

Figura 7. Elaboración propia

Figura 8. Sato, Shozo. The Quiet Art of Japanese Zen Calligraphy, Learn the Wisdom of Zen Through Traditional Brush Painting. Tuttle Publishing, 2014. p. 106

Figura 9. http://hiddenarchitecture.net/house-in-curved-road/)

Figura 10. Elaboración propia

Figura 11. Sato, Shozo. The Quiet Art of Japanese Zen Calligraphy, Learn the Wisdom of Zen Through Traditional Brush Painting. Tuttle Publishing, 2014. p. 23







Notas al final

i Cita completa: “In Japan, no concept of ‘space’ came into being. Not once has a concept of space like the ones in the West emerged. In the beautiful spaces at Jikō-in, there is no ‘space’. Katsura Villa, Kinkaku-ji and all the other beautiful and elegant buildings considered to represent Japanese perfection in architecture do not contain any ‘space’ as such. Such beauty as exist is a beauty stemming from the ‘non-existence of space’.” Shinohara, Kazuo. “The Japanese Conception of Space” (1964) [Recogido en: Enric Massip-Bosch, “Five forms of emotion: Kazuo Shinohara and the house as a work of art” (PhD diss., Universitat Politècnica de Catalunya, 2016)”, 85.]


ii Cita completa: “It means that the house has to be separated from the territory of architecture. It has to be moved into the realm of Art, where painting, sculpture, literature and others belong.” Shinohara, Kazuo. “The house is Art” Jūtaku-ron, Tokyo: Kajima shuppansha,1970. 79-85. [Traducido por Sakamoto Tomoko y Enric Massip-Bosch. Recogido en Massip-Bosch, “Five forms of emotion”, 273-277.]


iii Shinohara identificó cuatro “estilos” relativos a cuatro focos de interés que se fueron sucediendo en cuatro etapas a lo largo de su trayectoria. El “Primer Estilo” se caracteriza por el deseo de relación con la tradición japonesa, mientras que el “Tercer Estilo” tiende al desajuste y la brutalidad. [Desarrollado en mayor profundidad en Massip-Bosch, “Five forms of emotion, 61.]