Artículos

Mejoramiento de la habitabilidad de la vivienda construida con fondos de remesas mediante estrategias bioclimáticas pasivas

Habitability improvement of remittance funds built housing through passive bioclimatic strategies

Melhoria da habitabilidade da casa construída com fundos de remessa por meio de estratégias bioclimáticas passivas


DOI: https://doi.org/10.18861/ania.2024.14.1.3427


Mtr. Lic. José Luis Caballero Montes

Instituto Politécnico Nacional, Oaxaca

México

jcaballerom@ipn.mx

ORCID: https://orcid.org/0000-0003-3634-2080


Mtr. Arq. Flor Gabriela Ríos Ventura

Instituto Politécnico Nacional, Oaxaca

México

florgabrielariosventura@hotmail.com

ORCID: https://orcid.org/0000-0003-2193-7559


Dr. Rafael Alavéz Ramírez Instituto

Politécnico Nacional, Oaxaca

México

arrafael@yahoo.com.mx

ORCID: https://orcid.org/0000-0003-0246-0812


Recibido:
13/03/2023

Aceptado: 25/06/2023


Cómo citar

Caballero Montes, J. L., Ríos Ventura, F. G., & Alavéz Ramírez, R. Mejoramiento de la habitabilidad de la vivienda construida con fondos de remesas mediante estrategias bioclimáticas pasivas. Anales de Investigación en Arquitectura, 14(1). Recuperado a partir de https://revistas.ort.edu.uy/anales-de-investigacion-en-arquitectura/article/view/3427


Resumen

La investigación tiene como objetivo proponer el mejoramiento de una vivienda construida con fondos de remesas por migrantes de Oaxaca en México, para incrementar sus condiciones de habitabilidad mediante estrategias bioclimáticas pasivas. Para lo anterior, se llevó a cabo una fase diagnóstica del sitio en la agencia Guadalupe Victoria en la región mixteca de Oaxaca, particularizando la caracterización de casas que construyen las personas que emigran a los Estados Unidos. Lo anterior, para seleccionar el caso de estudio de una vivienda de remesas sobre la cual se realizó un análisis termofísico de los sistemas constructivos con las que fue edificada, el cual se complementó con una simulación térmica con el software Ener-Habitat. Posteriormente se llevó a cabo un estudio higrotérmico de la vivienda referida colocando registradores de temperatura tipo HOBOS data logger RH2 en su interior durante el periodo de calor de la zona (mayo y junio 2021). Como resultado se obtuvo que la vivienda de remesas en estudio está descontextualizada al clima de la zona, y requiere adecuaciones en su envolvente para mejorar el confort en su interior. Para mejorar las condiciones de habitabilidad de esta vivienda se propusieron: paneles de “totomoxtle” (hoja del maíz) en muros y cubiertas con aplanado de yeso. Con esta estrategia pasiva se obtienen valores de 63% de amortiguamiento de onda térmica y un desfase de 8 horas en el sistema muro, en tanto que para el sistema techo se alcanzan valores de 100% y 11.5 horas respectivamente. Así mismo se propone la adecuación de un invernadero orientado al Sur-Este, la conducción de calor de estufa Patsari en cocina y comedor e incrementar aleros de 80 cm en techos, garantizando con ello que se mejoren las condiciones de habitabilidad de la vivienda estudiada beneficiando a la familia Gonzáles García propietaria de la casa.

Palabras clave
Diseño pasivo, estrategias bioclimáticas, habitabilidad, proyecto de mejoramiento, vivienda de remesas.


Abstract

The objective of the research is to propose the improvement of a house built with remittance funds by migrants from Oaxaca in Mexico to increase their living conditions through passive bioclimatic strategies. For this, a diagnostic phase of the site was carried out in the Guadalupe Victoria agency in the Mixtec region of Oaxaca, specifying the characterization of houses built by people who immigrate to the United States. The above, to select the case study of a remittance house on which a thermophysical analysis of the construction systems with which it was built was carried out, which was complemented with a thermal simulation with the Ener-Habitat software. Subsequently, a hygrothermal study of the home was carried out, placing HOBOS data logger RH2 type temperature recorders inside it during the hot period in the area (May and June 2021). As a result, it was obtained that the remittance housing under study is decontextualized to the climate of the area, and requires adjustments in its envelope to improve comfort inside. To improve the habitability conditions of this house, the following proposals were made: “totomoxtle” (corn leaf) panels on the walls and covered with plaster. With this passive strategy, values ​​of 63% of thermal wave damping and a lag of 8 hours are obtained in the wall system, while for the roof system values ​​of 100% and 11.5 hours are reached, respectively. Likewise, it is proposed the adaptation of a greenhouse facing South-East, the heat conduction of the Patsari stove in the kitchen and dining room, and increasing 80 cm eaves in ceilings, thus guaranteeing that the habitability conditions of the studied dwelling are improved, benefiting to the González García family that owns the house.

Keywords
Passive design, bioclimatic strategies, habitability, improvement project, remittance housing.


Resumo

O objetivo da pesquisa é propor a melhoria de uma casa construída com fundos de remessas por migrantes de Oaxaca, no México, para melhorar suas condições de vida por meio de estratégias bioclimáticas passivas. Para isso, foi realizada uma fase de diagnóstico do local na agência Guadalupe Victoria na região Mixtec de Oaxaca, especificando a caracterização de casas construídas por pessoas que imigram para os Estados Unidos. O anterior, para selecionar o estudo de caso de uma casa de remessas na qual foi realizada uma análise termofísica dos sistemas construtivos com os quais foi construída, complementada com uma simulação térmica com o software Ener-Habitat. Posteriormente, foi realizado um estudo higrotérmico da referida casa, colocando no seu interior registradores de temperatura do tipo HOBOS data logger RH2 durante o período quente na área (maio e junho de 2021). Como resultado, obteve-se que a habitação de remessa em estudo está descontextualizada ao clima da zona, e requer ajustes na sua envolvente para melhorar o conforto interior. Para melhorar as condições de habitabilidade desta casa, foram feitas as seguintes propostas: painéis totomoxtle (folha de milho) nas paredes e reboco revestido. Com esta estratégia passiva obtêm-se valores de 63% de amortecimento das ondas térmicas e um atraso de 8 horas no sistema de paredes, enquanto para o sistema de coberturas atingem-se valores de 100% e 11,5 horas, respetivamente. Da mesma forma, propõe-se a adaptação de uma estufa virada a Sudeste, a condução de calor do fogão Patsari na cozinha e sala de jantar e o aumento de beirais de 80 cm nos tectos, garantindo assim que as condições de habitabilidade da habitação estudada sejam melhoradas, beneficiando à família González García proprietária da casa.

Palavras-chave
Design passivo, estratégias bioclimáticas, habitabilidade, projeto de melhoria, habitação de remessa.


Introducción

En México, la emigración de hombres y mujeres hacia Estados Unidos es un fenómeno que ha traído como consecuencia transformaciones en las comunidades rurales que se evidencian en su cultura, identidad, organización familiar, gustos, maneras de vestir y de pensar, entre otros muchos aspectos. El estado de Oaxaca ubicado al sur de la República Mexicana tiene un alto índice de migración y ocupa el quinto lugar en el país, y la región Mixteca ocupa el tercer lugar del Estado (INEGI, 2020). Esta situación se refleja en cambios culturales que se manifiestan en diversos ámbitos, uno de ellos está relacionado con la forma en que los migrantes construyen sus viviendas con modelos arquitectónicos del país del norte que muestran cambios físicos, espaciales y materiales que repercuten en un desarraigo contextual que trastocan prácticas culturales, sociales, epistemológicas, comunales, y en los modos de habitar (Freddi et al., 2020; Montalvo y López, 2018; Codesal, 2014). Es muy común ver como en las comunidades, las nuevas viviendas construidas con estilos y materiales contemporáneos desplazan y relegan a la vivienda vernácula tradicional. Este cambio cultural impacta en aspectos de tipo social, económico y ambiental.

Se han llevado a cabo trabajos en Latinoamérica de las viviendas que construyen los migrantes con los fondos de remesas que envían a sus comunidades desde una perspectiva arquitectónica (Freddi et al., 2020; Montalvo y López, 2018; Klaufus, 2016; Boils, 2010; Ramos, 2012; Sevilla y Rivas, 2010). Estos mayoritariamente han estudiado el cambio de la forma de construcción tradicional de las viviendas con nuevos materiales y nuevas tipologías arquitectónicas que no son propias de los contextos locales de las comunidades de origen de los migrantes.

Como antecedentes sobre investigaciones que han tenido como propósito el mejoramiento de la habitabilidad de la vivienda, se pueden mencionar aquellos que se orientan hacia la sustentabilidad, aportando a la calidad habitacional, posición geográfica, factores ambientales, bioclimáticos, energías renovables, adaptabilidad de sus ocupantes y saneamiento básico (Portilla, 2019; Andara et al., 2017; Robles et al., 2013; Jirón et al., 2004). Así también se han llevado a cabo investigaciones que aportan resultados para la creación de parámetros e indicadores que fundamenten los pilares de la sostenibilidad hacia una arquitectura económicamente viable, socialmente responsable y ambientalmente afable (Esteller et al., 2019).

La presente investigación tiene como objetivo proponer el mejoramiento de la vivienda construida con fondos de remesas por migrantes de la mixteca de Oaxaca en México para incrementar sus condiciones de habitabilidad mediante estrategias bioclimáticas pasivas a partir de un diagnóstico del sitio y de la vivienda de remesas que han construido los migrantes de la comunidad de San Pablo Tijaltepec, la cual se tomó como caso de estudio para el desarrollo de este trabajo.


Marco teórico


Vivienda de Remesas

Las viviendas de remesas son construcciones gestionadas y financiadas por migrantes en Estados Unidos, —primer destino migratorio de mexicanos—, en sus comunidades rurales de origen. En la vivienda construida, el autor migrante, concentra una narrativa de su identidad transnacional de ambos países, señal de superación, de concreción de un esfuerzo en solitario, familiar y comunitario. Las viviendas son construidas mayormente de materiales de elaboración industrial y que se distinguen sobre los paisajes rurales, por su tamaño, forma, distribución y espacialidad. Se distinguen también, por sus columnas portantes de hormigón armado, pisos de loseta, ventanales con marcos de aluminio y cristales de vidrio templado. Sobrecarga decorativa en la fachada con motivos vegetales, objetos religiosos, cosmológicos y una combinación estridente de color (Freddi et al., 2020; Boccagni y Perez, 2020; Amay, 2018; Andrade et al., 2017).


Figura 1.
Imágenes de viviendas construida con fondos de remesas por migrantes en comunidades de México

Fuente: Fotografía tomada por Ríos, 2021.


Habitabilidad

El concepto de la habitabilidad denota ser un proceso sistémico que guarda relación con la capacidad que tienen los espacios de distintas escalas territoriales para satisfacer necesidades subjetivas y objetivas de individuos que ocupan, usan y habitan esos espacios determinados. Así, la habitabilidad está determinada por la relación y adecuación entre el hombre y su entorno y es evaluada según su capacidad de satisfacer las necesidades humanas tanto en lo físico como en lo psicológico y social, sin perder la interacción con los procesos medioambientales (Borja y Maya, 2017; Espinoza y Gómez, 2010).

Para Jirón et al. (2004) el bienestar habitacional en sus distintas escalas territoriales, está en función de los factores: a) físico espacial: las condiciones de diseño, según la estructura física como dimensión, distribución y uso, b) psicosocial: el diseño determina el comportamiento individual y colectivo de los habitantes según las condiciones socioculturales y económicas, c) térmico: la condición climática ambiental del exterior y las condiciones de habitar, d) acústico: un confort acústico por la aislación del ruido exterior, e) lumínico: la iluminación natural que presentan los diferentes espacios de un recinto, y f) seguridad y mantenimiento: la durabilidad, seguridad estructural y la capacidad de administración y mantenimiento de acuerdo a las características socioeconómicas y medio geográfico en donde es emplazado.

Por su parte para Valladares et al (2013), la habitabilidad “se refiere a un conjunto de condiciones, que produce una capacidad o una posibilidad, la habitabilidad no es dada, sino creada (…) deben de tener características que la sociedad considera adecuadas para la vida de quienes habitan las escalas ambientales”. Así, la habitabilidad constituye una condicionante para el desarrollo de la calidad de vida.


Diseño bioclimático

La arquitectura bioclimática; solar, helio energético, climática, energéticamente consciente, o ecológica, se refiere a una arquitectura que toma las condiciones de las variables del entorno, ya sean climáticas, ambientales, biológicas y tecnológicas, para crear espacios óptimos, a fin de lograr que estos sean habitables, saludables y agradables y que produzcan elevadas condiciones de confort y bienestar a sus ocupantes (Poma, 2020; Viqueira, 2001; Freixanet, 2000; Olgyay, 1963).

La arquitectura bioclimática para Freixanet (2010), “puede contribuir de manera significativa al bienestar, eficiencia, salud, economía y ecología” a partir de objetivos tales como: 1) crear espacios habitables que sean física y psicológicamente saludables y confortables para propiciar el óptimo desarrollo del hombre y sus actividades, 2) promover el uso eficiente de la energía y de los recursos, caminando hacia la autosuficiencia del espacio habitable y 3) preservar y mejorar el medio ambiente, integrando al hombre a un ecosistema equilibrado a través de los espacios. Algunas de las variables del diseño climático son: el clima, la orientación y emplazamiento del edificio, la trayectoria solar, la ventilación, los materiales y sistemas constructivos eficientes, entre otros (Viqueira, 2001). En esta investigación se abordan aspectos de este diseño para dar solución a los problemas de habitabilidad de la vivienda tomada como caso de estudio considerando estrategias pasivas para mejorar las condiciones principalmente de confort térmico.


Metodología


Diagnóstico de la vivienda de remesas en la zona de estudio

El objetivo de este diagnóstico fue caracterizar la vivienda construida con fondos de remesas en una muestra de viviendas en la agencia Guadalupe Victoria y el Porvenir del municipio de San Pablo Tijaltepec, Oaxaca, México, considerando aspectos arquitectónicos, materiales y sistemas de construcción, además de su funcionalidad y apropiación. El diagnóstico se completó con otro para evaluar la habitabilidad de la vivienda de remesas para lo cual se diseñaron y aplicaron tres instrumentos: 1) cédula de vivienda, 2) instrumentación para determinar temperatura y humedad en una vivienda y 3) fichas técnicas de los materiales con los que está construida la vivienda.

Como resultado de este diagnóstico se seleccionó el caso de estudio que se presenta en este trabajo, el cual se centra en el análisis de uno de los factores importantes de la habitabilidad que tiene que ver con el confort, a partir del desempeño térmico de los materiales con los que se construyen las edificaciones, y que influencian en gran medida en las condiciones ambientales de su interior.


Contexto y características de la vivienda de remesas del caso de estudio

La vivienda tomada como caso de estudio para proponer su mejoramiento pertenece a la familia Gonzales García y se localiza en la mixteca alta en la agencia Guadalupe Victoria, San pablo Tijaltepec del estado de Oaxaca. Las coordenadas geográficas son Latitud -97° 30' 0.0"N Longitud 17° 01' 5.0" y Altitud de 2,279 msnm.

La figura 2 muestra una imagen de la fachada exterior de la vivienda donde se aprecian los materiales empleados en muros con madera tipo “siding” y acabado interior de tablaroca, el sistema de losa es de lámina galvanizada con cubierta a dos aguas. La estructura de la cubierta es de madera con una geometría reticulada. Las ventanas tienen vidrio simple claro de 3 mm con marcos de madera natural y se ubican en el Norte y Sur.


Figura 2.
Fachada de la vivienda de remesas de la familia Gonzáles García en la Agencia Guadalupe Victoria, Oaxaca, México

Fuente: Fotografías tomadas por Ríos, 2021


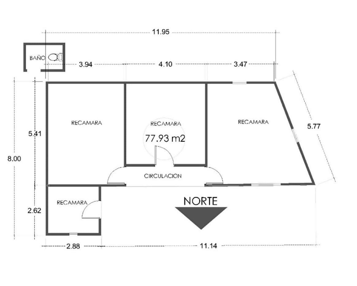
En la figura 3 se muestra un esquema en planta de la dimensión superficial de la vivienda que comprende 77.93 m2 de construcción. Los espacios interiores se componen con cuatro recámaras que son usadas como dormitorios por la familia.


Figura 3. Planta arquitectónica de la vivienda en estudio

Fuente: Elaborada por Alavéz, 2022


Determinación de propiedades térmicas de los sistemas constructivos de la vivienda

Previo al análisis del desempeño higrotérmico de la vivienda, se determinaron las propiedades de inercia térmica (amortiguamiento y retardo térmico) de sus sistemas muro y techo. Se analizaron estas propiedades debido al impacto significativo que tienen en el desempeño energético y ambiental de una edificación. La inercia térmica, es la capacidad que tiene un material para acumular calor o frío y depende de su masa, densidad y calor especifico; a mayor inercia térmica, mayor capacidad de acumulación de calor o frío, por lo tanto, mejor comportamiento térmico (De Garrido, 2017). En la inercia térmica se presentan dos fenómenos importantes: el amortiguamiento térmico (Factor de decremento) y desfase o retardo térmico. El amortiguamiento térmico se da durante el proceso de conducción del calor a través de un cerramiento (muro o techo) cuando deja de darle el sol y baja la temperatura (Neila, 2004). El tiempo que tarda la onda de calor en atravesar el cerramiento se denomina desfase de la onda térmica. Este desfase (df) depende de la conductividad térmica (λ), de la densidad (ρ), del calor específico (Ce) y del periodo del fenómeno. Se recomienda que el desfase sea de 8-10 horas, para que el frio de la noche se transmita al interior de la edificación durante el día, y que el calor del día llegue en horas de la noche (Varini, 2016).  Mientras mayores sean el espesor, la densidad, el calor específico y la resistividad de los materiales del cerramiento de una edificación, mayores tenderán a ser el retraso y el amortiguamiento térmico.

Para determinar el amortiguamiento y retardo térmico en la vivienda se utilizó la herramienta Ytong de la empresa Ytong Xella España hormigón Celular S.A. La herramienta consiste en una hoja de cálculo en la que se introducen las propiedades termofísicas de los materiales que integran el sistema constructivo de una edificación (conductividad térmica, calor especifico y densidad).

Por otra parte, se realizó una simulación térmica para comparar el desempeño térmico del sistema de muro de madera de la vivienda en estudio con respecto al sistema de muro de block de cemento de uso común en México con la herramienta Ener-Habitat (www.enerhabitat.unam.mx.). Esta herramienta realiza simulaciones numéricas de transferencia de calor dependiente del tiempo, lo que permite tomar en cuenta no solamente la resistencia térmica de los materiales, sino también el efecto que tiene su masa térmica. Las propiedades termofísicas de los materiales de los sistemas en comparación (densidad, conductividad térmica y calor especifico) se tomaron de la Norma Oficial Mexicana NOM-OO8-ENER-2001 (Eficiencia Energética en Edificaciones, Envolvente de Edificios no Residenciales) y de la base de datos del Ener-Habitat.

La figura 4 muestra el arreglo constructivo para el sistema de muro de la vivienda, resuelto al exterior con un revestimiento de madera conífera, un espacio de aire intermedio y un acabado interior de tablaroca. Los resultados obtenidos en el software Ytong indicaron que el amortiguamiento de onda térmica para el sistema de muro fue de 1.87% y el desfase térmico de 0.9 horas, mientras que, para el sistema de techo construido con sistema estructural de madera, lámina galvanizada, cámara de aire y tablaroca, con una pendiente aproximada de 30° (Figura 5) presenta un amortiguamiento de onda térmica de 100% y un desfase térmico de 2 horas al día. En este caso el desfase térmico fue muy pobre.


Figura 4.
Análisis de las propiedades térmicas del sistema constructivo muro de la vivienda con el software Ener Habitat


Fuente: Elaborada por Ríos y Alavéz, 2022 con el software Ener Hábita


Figura 5.
Análisis de las propiedades térmicas del sistema constructivo techo de la vivienda con el software Ener Habitat


Fuente: Elaborada por Ríos y Alavéz, 2022 con el software Ytong


La figura 6 muestra los resultados de la simulación termica con el software Ener-Habitat para el sistema de muro de madera de la vivienda de remesas (S.C.1), el cual registró una Tmin= 9°C y una Tmax= 34°C con una diferencia de temperatura de 25°C; en tanto que el sistema de muro de block de cemento (S.C.2) tuvo una Tmin= 17°C y una Tmáx= 29°C con una diferencia entre estas de 12°C. Esto indica, que el sistema S.C.2 presentó una mayor estabilidad termica con mayor número de temperaturas que se encuentran en la zona de confort termico del lugar, debido a la inercia termica del bloque de cemento.


Figura 6.
Comparativa de temperaturas entre sistemas constructivos con el software Ener-Habitat

Fuente: Elaborada por Ríos et al., 2022 con el software Ener Hábita


La figura 7 muestra los resultados del factor de decremento o amortiguamiento termico que presentaron los sistemas S.C.1 y S.C.2. obtenidos con el
software Ener-Habitat. Este factor indica en que medida estos sistemas en análisis tienen estabilidad térmica. La estabilidad térmica relaciona la amplitud de la temperatura interior (temperatura máxima menos temperatura mínima) con la amplitud de la temperatura exterior. Los valores próximos a 1 indican que el espacio no tiene inercia térmica y que cualquier alteración energética (exterior o interior) se refleja inmediatamente en su ambiente interior, mientras que valores pequeños por debajo de 0.5 refieren a edificios estables y por tanto poco dispuestos a cambiar de temperatura (Neila, 2004). Con base a lo anterior el S.C.1 no logra tener una buena estabilidad termica al presentar un valor de 0.91 debido a que el sistema de muro de madera no tiene suficiente masa termica; mientras que el S.C.2 tuvo una estabilidad de 0.44, y esto se debe principalmente a las propiedades térmicas que tiene el block de cemento (Figura 7).


Figura 7.
Comparativa del factor de decremento entre sistemas constructivos con el software Ener-Habitat

Fuente: Elaborada por Ríos et al., 2022 con el software Ener Hábitat


Análisis higrotérmico de la vivienda de remesas

Para determinar la estabilidad térmica al interior de la vivienda tomada se evaluó el desempeño del comportamiento higrotérmico de temperaturas durante el período de calor (mayo y junio 2021). Las temperaturas registradas al interior de la vivienda se compararon con respecto al intervalo del confort térmico local y la temperatura exterior ambiental. Las mediciones de temperatura del aire al interior y exterior de las viviendas se tomaron con intervalos de una hora durante los días considerados.

Cabe mencionar que la vivienda no tiene ningún sistema de enfriamiento convencional. Las mediciones de temperatura se registraron en el centro geométrico de la vivienda a la altura de los ocupantes y se consideró también la temperatura ambiental exterior. Para registrar las temperaturas se usaron dispositivos de medición HOBOS tipoU12-006 que incluye el software HOBOware y un Kit de calibración, así como un almacenamiento de 43,000 mediciones con un rango de muestreo de 1segundo a 18 horas.

Para la obtención de la zona de confort térmico para la mixteca alta se obtuvieron los datos normalizados de temperaturas de la estación 20178 - Villa Chalcatongo, Mixteca. La zona de confort térmico se obtuvo utilizando el modelo de la ecuación de Aulliciem de acuerdo a la ecuación 1 y 2 (Szokolay, 1984)

Tn= 17.6 + 0.31 (tm)………………………………………………….…………….(1)

Tc= Tn + 2.5……………………………………………………..………………….(2)

Donde Tn= Temperatura neutra (°C), Tm= Temperatura media (°C), Tzct= Temperatura de la zona de confort térmico (°C). La temperatura neutra anual calculada fue de 21.6, con una zona de confort térmico entre 19 y 24°C.


Determinación de Estrategias de diseño bioclimático para el mejoramiento de la viviend
a de remesas

Para llevar a cabo el mejoramiento de la vivienda respecto a su confort térmico y proponer el mejor sistema constructivo que incrementara este factor de habitabilidad, se determinaron estrategias de diseño bioclimático mediante la caracterización climática y un análisis paramétrico que proporciona los diagramas bioclimáticos. El análisis climático se llevó a cabo utilizando la herramienta BAT (Bioclimatic Analysis Tool) (Rincón Martínez y Fuentes Freixanet, 2014). Para tal efecto, se utilizaron datos climáticos normalizados de la estación 20178 de la Villa Chalcatongo, Mixteca alta, siendo la más cercana al área de estudio (ocho kilómetros). Los datos climáticos tienen un período de 29 años (1951-2010) y fueron provistos por el Servicio Meteorológico Nacional (Organización Meteorológica Nacional de México).


Propuesta de mejoramiento de la habitabilidad de la vivienda de remesas

Se realizaron las propuestas de mejoramiento de la vivienda de la familia Gonzales García de acuerdo con el diagnóstico de habitabilidad realizado, el cual arrojó problemas de bajo desempeño térmico de los materiales con los que se construyó. Por lo anterior, se propuso como estrategia bioclimática pasiva aislar los muros y techos de la vivienda con paneles de totomoxtle (hoja de maíz) y aplanados de yeso. Posteriormente se realizó una evaluación térmica de los sistemas constructivos propuestos mediante la herramienta digital Ytong y Ener-Habitat.

El mejoramiento de la habitabilidad de la vivienda se complementó con la integración de ecotecnias que respondieran a las necesidades que expreso la familia durante el diagnóstico realizado. Para lo cual, se realizó una revisión en la literatura para seleccionar las más apropiadas para zonas rurales (Tagle y Azamar; Ortiz et al., 2014) tomando en cuenta aquellas que propiciarán una mejor gestión del agua y de la energía, además de que fueran de bajo costo y que permitieran la participación de la familia en su construcción.


Discusión de resultados


Comportamiento higrotérmico de la vivienda de remesas

La figura 8 muestra el desempeño térmico de la vivienda en el mes más caluroso del 2021, observándose que la temperatura mínima alcanzada es de 15.46°C y la máxima de 25.57°C. Se puede notar que, en este mes durante el 66% del tiempo, se registraron temperaturas por debajo de la zona de confort, frente a un restante 33% que logran entrar en esta zona.


Figura 8.
Registro de temperaturas registradas al interior de la vivienda en mayo de 2021.

Fuente: Elaborada por Ríos, 2022 con el software Hoboware


La figura 9 muestra la humedad relativa con respecto a la zona de confort (30-70 HR%), con valores que se encuentran en un 85% de horas por arriba de la zona de confort (ZC).


Figura 9.
Registro de Humedades relativas de la vivienda en mayo de 2021

Fuente: Elaborada por Ríos, 2022 con el software Hoboware


Resultados de las estrategias de diseño bioclimático para la localidad donde se ubica la vivienda de remesas

La figura 10 muestra el análisis mensual de temperaturas y umbral de confort térmico de la zona climática en estudio. Se observa que la zona de confort oscila entre los 18 a 23 grados centígrados. La temperatura media, mínima extrema y la máxima extrema se salen de la zona de confort térmico. Esta situación indica que se tiene que implementar estrategias para el calentamiento de la vivienda, además de otras soluciones pasivas que se indican más adelante en los diagramas bioclimáticos.


Figura 10.
Temperaturas y umbral de confort térmico presentadas en la zona de estudio

Fuente: Elaborada por Ríos, 2022 con el software Análisis Bioclimatic Tool (BAT)


La figura 11 muestra el diagnostico climático de las temperaturas horarias que se realizó en la zona de estudio. Tal y como se puede apreciar, las viviendas en esta región necesitan calentamiento por las noches y por las mañanas, ya que durante las horas de la tarde las temperaturas que se registran se encuentran dentro de la zona de confort de la localidad.


Figura 11.
Diagrama bioclimático de las temperaturas horarias en la zona de estudio

Fuente: Elaborada por Ríos, 2022 con el software BAT


La figura 12 presenta el análisis de la carta bioclimática donde se observa que al interpolar los valores de temperatura en el eje Y con los valores de humedad relativa en el eje X, estos se salen totalmente de la zona de confort térmico del lugar, obteniendo requerimientos de calentamiento mediante la estrategia de radiación solar durante todo el año en un 100 por ciento.


Figura 12.
Diagrama bioclimático de Baruch Givony

Fuente: Elaborada por Ríos con el software BAT

La figura 13 muestra cómo la temperatura afecta las actividades de las personas dentro de los espacios en la vivienda debido a su ubicación, observándose que en el primer semestre del año las temperaturas son frías. Por lo anterior, se requiere que la vivienda almacene las ganancias solares que se presenta en las mañanas y tardes para que su envolvente disipe la temperatura almacenada durante la noche.


Figura 13
. Gráfica de proyección estereográfica y temperaturas horarias de la zona de estudio

Fuente: Elaborada por Ríos, 2022


La figura 14 muestra los triángulos de confort que indican que la estrategia bioclimática más adecuada durante todo el año son las ganancias solares. En invierno se requiere inercia térmica, sin embargo, durante los meses de calor (mayo, junio, julio y agosto) se requiere de ganancias internas proponiendo estrategias como un invernadero orientado al SE y la construcción de una estufa Patsari en la cocina de la vivienda que conduzca calor en el área del comedor principalmente.


Figura 14.
Estrategias bioclimáticas obtenidas del método de triángulos de confort de la zona en estudio

Fuente: Elaborada por Ríos, 2022


Propuesta de mejoramiento
de la habitabilidad de la vivienda de remesas

Con los resultados obtenidos del comportamiento higrotérmico del estado actual de la vivienda, se elaboró una propuesta para su mejoramiento a partir de conceptos bioclimáticos, proponiendo una serie de adecuaciones para incrementar su habitabilidad con sistemas pasivos que incluyen ecotecnias, masa térmica y altura de la losa, tal y como se muestra en la tabla 1.


Tabla 1.
Clasificación de los elementos bioclimáticos para el mejoramiento de la habitabilidad de la vivienda de remesas

Concepto

Estrategia

Descripción

Propuesta


Sistemas pasivos

Ganancias solares 29.8%

Calentamiento solar pasivo hacia el interior de la vivienda

-Aislamiento térmico con paneles de totomoxtle en muros y cubiertas






Ganancias internas 48.6%





A partir de las 4:00 pm se aprovechen las ganancias internas.

Inercia térmica dirigida hacia el interior de la vivienda de remesas


-Invernadero orientado al SE.

-Conducción de calor de estufa Patsari en cocina y comedor.




Masa térmica



Materiales de construcción



-Muros con un mínimo de retardo térmico de 8 horas (propuesta de aislante térmico de totomoxtle)

-Amortiguamiento y desfase térmico

-Muros de adobe de 40 cm en la cocina y el comedor



Altura de losa


Techumbre a dos vertientes

Protección contra la lluvia

Sistema de captación de agua pluvial

-Incrementar aleros a 80 cm de saliente

-Captación de agua pluvial


Fuente: Realizada por Ríos y Alavéz, 2022

En la figura 15 se muestra un axonométrico del corte de la vivienda analizada con las estrategias bioclimáticas propuestas. La primera, es el invernadero acristalado para siembra de hortalizas con un área de 25.57 m2, y que se encuentra orientado al sureste, el cual se espera que capte una temperatura del orden de los 10°C. Este calor será disipado hacia el interior de la vivienda, principalmente en el área de recámaras, por medio de ductos de aire colocados a 50 cm del piso. En tanto que para el aprovechamiento de las aguas pluviales del techo de la vivienda de 70 m2 se plantea la construcción de un Sistema de Captación de Agua de Lluvias (SCALL) con tanque de ferrocemento para almacenar 55,112 litros, el cual podrá tener su capacidad máxima en los meses de junio a septiembre que corresponde a la época de lluvia en la zona con precipitación alta de hasta 150 mm.


Figura 15.
Propuesta de mejoramiento de la vivienda con estrategias bioclimáticas pasivas

Fuente: Elaborada por Ríos, 2022 con el software Sketchup

Otra ecotecnia que se consideró en la vivienda es la construcción de una estufa Patsari en la cocina, como alternativa ecológica al fogón abierto tradicional muy común en las viviendas tradicionales de la región mixteca. Esta solución contribuirá a reducir la concentración de gases en su interior y eliminar riesgos de salud, además de que reducirá tiempos de cocción de alimentos. La estufa Patsari tiene una hornilla principal para la preparación de las tortillas y dos hornillas secundarias para la colocación de recipientes de cocina. La base de la estufa sirve para moler y preparar tortillas (Figura 16).


Figura 16.
Estufa Ptsari para el calentamiento interno de la vivienda

Fuente: Elaborada por Ríos, 2022

Por otra parte, se realizaron propuestas para mejorar al ambiente interior en la vivienda con base a las envolventes de los materiales con las que están construidas. En la figura 17 se presenta la ficha técnica con la adecuación sugerida que consiste en aislar los muros de la vivienda construidos con madera tipo “siding”, a los cuales se les integra por la parte interna un recubrimiento de plástico, una cámara de aire, un panel construido con hojas de maíz (totomoxtle) con un espesor de 10 cm, y una capa de yeso. Con esta combinación de materiales se podría obtener el 63.03% de amortiguamiento de onda térmica y un desfase de 8.2 horas.


Figura 17.
Ficha técnica del sistema de muro mejorado de la vivienda

Fuente: Elaborada por Ríos, 2022 con el software Ytong

La figura 18 muestra la ficha técnica de la propuesta de techo que se constituye -iniciando del exterior- con lámina galvanizada, recubrimiento de plástico, aislante térmico a base de panel de totomoxtle, cámara de aire, plafón de totomoxtle y recubrimiento de yeso, lo cual genera un amortiguamiento térmico del 100% y un retardo térmico de 8.3 horas.


Figura 18.
Ficha técnica del sistema de techo mejorado de la vivienda

Fuente: Elaborada por Ríos, 2022 con el software Ytong

En la figura 19 se muestran los detalles constructivos propuestos para el mejoramiento de los sistemas muro y techo de la vivienda de remesas de la familia Gonzales García.


Figura 19.
Gráfico de los sistemas constructivos para el mejoramiento térmico de la vivienda

Fuente: Elaborada por Ríos, 2022 con el software Sketchup

En la figura 20 se observa la comparativa de las temperaturas presentadas en en el mes de mayo del 2021 de los tres sistemas en comparación (S.C.1, S.C.2, S.C.3) para valorar en que medida el sistema de muro mejorado para la vivienda (S.C.3) ofrece una mayor estabilidad térmica. Se puede ver que el S.C.3 presentó una Tmax=31ºC y una Tmin= 20°C, con una diferencia de temperaturas de 11°C. El sistema de muro de madera con la que esta construida la vivienda actualmente (S.C.1) registró una Tmax= 56°C y Tmin= 9°C con una diferencia de temperaturas de 47°C; en tanto que en el sistema muro de block de cemento (S.C.2) tuvo una Tmax= 40ºC y una Tmin= 16ºC con una diferencia de temperatura de 24ºC. Estos resultados indican que la propuesta S.C.3 tiene una menor oscilación, y en consecuencia una mayor estabilidad termica, es decir, que tendrá poca variación de temperaturas al interior de la vivienda una vez que se realice la mejora.


Figura 20.
Comparativa de temperaturas entre sistemas con el software Ener-Habitat

Fuente: Elaborada por Ríos y Alavéz con el software Ener Hábitat

La figura 21 muestra los resultados obtenidos del factor de decremento (Fd) o amortiguamiento termico de los sistemas analizados; S.C.1= 0.91, S.C.2= 0.44 y S.C.3=0.23. Como se mencionó anteriormente los valores próximos a 1 carecen de inercia termica, mientras que los valores pequeños por debajo de 0.5, se refieren a edificios estables y por tanto poco dispuestos a cambiar de temperatura (Neila, 2004). El Fd obtenido en el sistema de muro mejorado S.C.3 con un valor de 0.23, es mejor que los que presentan materiales como el concreto de alta densidad (Fd=0.90), concreto aereado (Fd= 0.50 ) y poliestireno expandido (Fd= 0.80) Barrios et.al (2012). La estabilidad termica que ofrece el S.C.3 se debe principalmente a las propiedades termicas que proporciona el panel aislante de totomoxtle de 10 cm de espesor y la camara de aire, con lo que se logra amortiguar los picos de temperatura que se producen por el sobrecalentamiento diurno que se presenta en la zona de estudio.


Figura 21
. Comparativa del factor de decremento entre sistemas constructivos con el software Ener-Habitat

Fuente: Elaborada por Ríos y Alavéz con el software Ener Hábitat


Conclusiones

El estudio del mejoramiento de las viviendas que se construyen con recursos económicos enviados por migrantes a sus familias en comunidades de la mixteca en Oaxaca, México a partir de un diagnóstico y estudio bioclimático, permitió identificar que las viviendas de remesas en esta región estan descontextualizadas a su entorno climático y requieren adecuaciones en su envolvente para mejorar su habitabilidad. Para ello en la vivienda tomada como caso de estudio se propuso un sistema de construcción con materiales naturales locales como el totomoxtle (hoja de maíz) que, en combinación con otros, como la madera y la tablaroca de origen industrial, se pueden conformar envolventes para muro o techo que ofrezcan aislación y masa térmica con valores adecuados de amortiguamiento y retardo térmico que beneficien en el confort de los usuarios de la vivienda. Además de integrar ecotecnias como la estufa Patsari, sistema de recolección de agua de lluvias, invernadero y baño ecológico que buscan una relación armónica con el ambiente y brindarán beneficios sociales y económicos tangibles para la familia Gonzáles García, dueños de la vivienda estudiada.

Es importante señalar que en esta investigación resultó de gran ayuda el empleo de herramientas tecnológicas como los softwares BAT (Bioclimatic Analisys Tool), Ytong y Ener-Habitat con los que se pudo identificar las condiciones climáticas del sitio, además de simular el comportamiento de los sistemas constructivos propuestos para el mejoramiento de la vivienda que garantizarán una estabilidad térmica, y por consecuencia un mejor confort para la familia que la habita. Este tipo de abordaje valida de forma anticipada el comportamiento térmico de materiales y/o sistemas antes de su implementación en las edificaciones con los beneficios económicos y ambientales que esto conlleva.

Por otra parte, es necesario profundizar en otros problemas de la habitabilidad que presentan las viviendas de remesas en la agencia Guadalupe Victoria, San Pablo Tijaltepec, y que mediante investigaciones con enfoques técnico y social se puedan aportar soluciones viables y sostenibles. Una de estas problemáticas identificadas tiene que ver con los modelos arquitectónicos de las viviendas que se construyen actualmente, las cuales muestran cambios físicos, espaciales y materiales que repercuten en un desarraigo contextual y cultural a la arquitectura de la región y los modos tradicionales de habitar. Se tiene que sensibilizar a las personas para no seguir construyendo como se viene haciendo hoy en día con estilos americanizados, grandes inversiones económicas, y el empleo de cantidades importantes de materiales industrializados con los impactos ambientales que esto conlleva.


Agradecimientos

La autora agradece al Consejo Nacional de Ciencia y Tecnología (CONACYT) por la beca de estudios en la maestría en Gestión de Proyectos para el Desarrollo Solidario CIIDIR- IPN Unidad Oaxaca. Los coautores a la Secretaria de Investigación y Posgrado (SIP) del Instituto Politécnico Nacional por el financiamiento de los proyectos SIP 20221296 y SIP 20231392, así como a la COFAA del mismo instituto por la beca de exclusividad otorgada.


Aprobación final del artículo

Ma. Arq. Andrea Castro Marcucci, editora en jefe aprobó la publicación de este artículo.


Contribución de autoría

Mtr. José Luis Caballero Montes: Director del proyecto de investigación: Estudio de la habitabilidad de la vivienda construida con fondos de remesa por migrantes en comunidades de la mixteca de Oaxaca desarrollado en el período 2022, f inanciado por el Instituto Politécnico Nacional de México, del cual se deriva la investigación del manuscrito. Participación en el diseño de la metodología para llevar a cabo el proyecto y colaboración en la preparación, elaboración y revisión del manuscrito.

Mtr. Flor Gabriela Ríos Ventura: Elaboración de tesis de maestría: “Proyectos de diseño sustentable para mejorar la vivienda de remesas y la conservación de la vivienda tradicional de la mixteca de Oaxaca”. Participante del proyecto de investigación: Estudio de la habitabilidad de la vivienda construida con fondos de remesa por migrantes en comunidades de la mixteca de Oaxaca desarrollado en el período 2022, financiado por el Instituto Politécnico Nacional de México. Participación en el diseño de la metodología para llevar a cabo el proyecto y colaboración en la preparación, elaboración y revisión del manuscrito.

Dr. Rafael Alavéz Ramírez: Contribución en la asesoría del proyecto de diseño bioclimático, como estrategias de diseño sostenible, simulación térmica en Ener-Habitat y análisis del estudio del desempeño higrotérmico de la vivienda de remesas. Participación en la preparación, elaboración y revisión del manuscrito.


Referencias

Amay, F. (2018). Arquitectura de migrantes. Comunidad rural de Sigcho, Sinincay [tesis de licenciatura, Universidad Católica de Cuenca]. Repositorio Institucional. Obtenido de https://dspace.ucacue.edu.ec/handle/ucacue/1338

Andara, C., Valladares, I., y Core, J. (2017). Diseño e implementación de soluciones sostenibles mediante una vivienda en la colonia Santa Clara, Comayaguela MDC Honduras. Postal de la Ciencia, 99-119. Obtenido de https://lamjol.info/index.php/PC/article/view/5519

Andrade, Ú., Sindy, B., & Bauer, L. (2017). Aproximación a la Migración Internacional Guatemalteca Contemporánea. Revista Eutopía, 2(3), 179-195. Obtenido de http://168.234.75.179/index.php/reu/article/view/1118

Barrios G., Huelsz G., Rojas J. (2012). Parámetros para medir el desempeño térmico de muros/techos de la envolvente de una edificación que no usa aire acondicionado. Memoria 36 Semana Nacional de Energía Solar. ANES. Cuernavaca, Morelos, México. 5 de octubre de 2012. Energía Sostenible para todos. ISBN: 978-607-95019-5-2

Boccagni, P., & Perez, M. (2020). Fixed places, shifting distances: remittance houses and migrants’ negotiation of home in Ecuador. Migration Studies. Obtenido de https://doi.org/10.1093/migration/mnaa017

Boils, G. (2010). El envío de remesas como factor de cambio en la vivienda de la Mixteca Alta oaxaqueña. Dimensión Antropológica, 49, 143-178. Obtenido de https://www.dimensionantropologica.inah.gob.mx/?p= 4728

Borja, C. y Maya, E. (2017). La Habitabilidad Cero: Una buena práctica olvidada en la producción industrial. Producción de vivienda y desarrollo urbano sustentable. 87-102. Obtenido de https://www.jstor.org/stable/j.ctvtxw3bp.8.

Codesal, D. (2014). From “mud houses” to “wasted houses”: remittances and housing in rural highland Ecuador. Revista Interdisciplinar da Mobilidade Humana, 22(42), 263-280.

De Garrido, L. (2017). Manual de arquitectura ecológica avanzada. Ediciones de la U.

Espinoza, A., & Gómez, G. (2010). hacia una concepción socio-fisica de la habitabilidad: espacialidad, sustentabilidad y sociedad. Revista de Investigación Científica en Arquitectura, 5(1). Obtenido de http://revistasacademicas.ucol.mx/index.php/palapa/art icle/view/121

Esteller, A., Piñuelas, I., y Insausti, A. (2019). Utilización de indicadores como respuesta a la introducción de la sostenibilidad en las ciudades mexicanas en el s. XXI. Utilización de indicadores como respuesta a la introducción de (págs. 472-482). III ISUF-H Congreso Internacional 18-20 septiembre 2019 Guadalajara (México). Obtenido de https://riunet.upv.es/handle/10251/145296

Freddi, A., Carreño, A. y Mérida, L. (2020). Concretos deseos de (in)movilidad. Migraciones indígenas y arquitectura de remesas entre lo comunal y lo trasnacional. Revista Estudios Sociales., 18-32.

Freixanet, V. (2000). Arquitectura bioclimática. Universidad Autónoma Metropolitana- Azcapotzalco.

Givony, B. (1998). Climate consideration in building and urban design,/climate and comfort. U.S.A.: Van nostrand reihold.

Herrera-Sosa, L. C., Villena-Montalvo, E. E., y Rodríguez-Neira, K. R. (2020). Evaluación del desempeño térmico del sillar (ignimbrita) de Arequipa, Perú. Revista De Arquitectura (Bogotá, 22(1), 152-163. Obtenido de https://doi.org/10.14718/RevArq.2020.2261

INEGI. (2020). Censo de Población y Vivienda. Obtenido de https://censo2020.mx/

Jiron, Toro y Caquimbo. (2004). Guía de diseño para un habitad residencial sustentable. Chile: Universidad de Chile, Facultad de Arquitectura y Urbanismo. Instituto de la Vivienda.

Klaufus, C. (2016). Demostration effect' in Latin American popular architecture. En M. Lozanovska, Ethno-Architecture and the Politics of Migration (pág. 99). Routledge.

Montalvo, V., & López, P. (2018). La arquitectura de remesas en San Simeon Xipetzinco, Tlaxcala, México. Legado de Arquitectura y Diseño (23), 87-96. Obtenido de https://legadodearquitecturaydiseno.uaemex.mx/article /view/11511

Neila, J. (2004). Arquitectura bioclimática en un entorno sostenible. Obtenido de https://dialnet.unirioja.es/descarga/articulo/1333771.pdf

Norma Oficial Mexicana (2021). Eficiencia Energética en Edificaciones, Envolvente de Edificios no Residenciales (NOM-008,2021). Disponible en: https://www.gob.mx/cms/uploads/attachment/file/693753/NOM-008.pdf

Olgyay, V. (1963). Arquitectura y Clima. Manual de diseño bioclimático para arquitectos y urbanistas. Princeton University Press.

Ortiz, J., Masera, O., y A. Fuentes. (2014). La ecotecnología en México. Unidad de Ecotecnologías. Imagia, CIECO, UNAM. Morelia.

Plata, F., & Bordi, I. (2012). Así construí “mi casa”: entre relaciones de género y el (otro) sueño americano de las parejas de migrantes mexicanos. Alteridades, 22 (44), 147-164.

Poma, G. (2020). Propuesta de arquitectura bioclimática aplicada a viviendas unifamiliares para mejorar el confort térmico de sus habitantes en el distrito de Pucará [tesis de doctorado. Universidad Nacional del Centro de Perú]. Repositorio Institucional.

Portilla, D. (2019). Mejoramiento de vivienda y entorno. Una propuesta de intervención habitacional. [tesis de licenciatura, Universidad Católica de Colombia]. Repositorio Institucional.

Ramos, T. (2012). Transnacionalización de la sociedad salvadoreña, producto de las migraciones [tesis de licenciatura, Universidad Tecnológica de El Salvador]. Repositorio Institucional.

Rincón, J. C., y Freixanet, V.A. (2014). “An Alternative to Facilitate and Streamline Preliminary Studies.” Energy Procedia 57(55): 1374‑82. Obtenido de http://dx.doi.org/10.1016/j.egypro.2014.10.128.

Robles, J., González, G., y Escamilla, V. (2013). Evaluación de la habitabilidad a partir del confort y su caracterización climática. (págs. 1-13). Cuerpo Académico Hábitat Sustentable, Instituto de Investigación y Posgrado de la Facultad del Hábitat.

Sevilla, J., y Rivas, O. (2010). La vivienda de remesas en Nicaragua. Remesas. Org. Centro de investigación y cooperación especializado en remesas de emigrantes. No. 3. 1-13. Obtenido de http://www.remesas.org/files/WP3_high.pdf.

Szokolay S, V. (1984). Energetics indesinn university of queensland . Australia: University of Queensland.

Tagle, D., y Azamar, A. (2020). Beneficios asociados al uso de ecotecnias en comunidades rurales de Guanajuato, México. Revista Iberoamericana de Economía Ecológica, 33 (1): 112-132. Obtenido de https://raco.cat/index.php/Revibec/article/view/381037/474192

Valladares, R., Chávez, M., & Moreno, S. (2013). Elementos de la habitabilidad urbana. Elementos de la habitabilidad urbana. Mesa de Cultura y habitabilidad (págs. 1-15). Universidad de Colima.

Varini, C. (2016). Ecoenvolventes: Entre continuidad e innovación. Universidad Piloto de Colombia.

Viqueira, M. C. (2001). Introducción a la arquitectura bioclimática. LIMUSA


Fuentes de imágenes y tablas

Figura 1. Fotografía tomada por Ríos, 2021.

Figura 2. Fotografías tomadas por Ríos, 2021.

Figura 3. Elaborada por Alavéz, 2022

Figura 4. Elaborada por Ríos y Alavéz, 2022 con el software Ener Hábitat

Figura 5. Elaborada por Ríos y Alavéz, 2022 con el software Ytong

Figura 6. Elaborada por Ríos et al., 2022 con el software Ener Hábitat

Figura 7. Elaborada por Ríos et al., 2022 con el software Ener Hábitat

Figura 8. Elaborada por Ríos, 2022 con el software Hoboware

Figura 9. Elaborada por Ríos, 2022 con el software Hoboware

Figura 10. Elaborada por Ríos, 2022 con el software Análisis Bioclimatic Tool (BAT)

Figura 11. Elaborada por Ríos, 2022 con el software BAT

Figura 12. Elaborada por Ríos con el software BAT

Figura 13. Elaborada por Ríos, 2022

Figura 14. Elaborada por Ríos, 2022

Figura 15. Elaborada por Ríos, 2022 con el software Sketchup

Figura 16. Elaborada por Ríos, 2022

Figura 17. Elaborada por Ríos, 2022 con el software Ytong

Figura 18. Elaborada por Ríos, 2022 con el software Ytong

Figura 19. Elaborada por Ríos, 2022 con el software Sketchup

Figura 20. Elaborada por Ríos y Alavéz con el software Ener Hábitat

Figura 21. Elaborada por Ríos y Alavéz con el software Ener Hábitat


Índice de Tablas

Tabla 1. Realizada por Ríos y Alavéz, 2022.