Metáfora conceptual para el diagnóstico de un barrio periférico en Loja-Ecuador

Conceptual metaphor for the diagnosis of a peripheral neighborhood in Loja-Ecuador

Metáfora conceitual para o diagnóstico de um bairro periférico em Loja-Equador


DOI: https://doi.org/10.18861/ania.2025.15.2.4063


Arq. Silvia Alexandra Viñan Ludeña
Universidad Internacional del Ecuador
Ecuador
sivinanlu@uide.edu.ec
ORCID:
https://orcid.org/0000-0002-5600-6159

Arq. Alexandra del Rosario Moncayo Vega
Universidad Técnica Particular de Loja
Ecuador
admoncayo@utpl.edu.ec
ORCID: https://orcid.org/0000-0003-3575-5860


Recibido: 07/04/2025
Aceptado: 06/05/2025


Cómo citar:
Viñan-Ludeña, S. A., & Moncayo Vega, A. (2025). Metáfora conceptual para el diagnóstico de un barrio periférico en Loja-Ecuador.
Anales de Investigación en Arquitectura, 15(2). https://doi.org/10.18861/ania.2025.15.2.4063


Resumen

En los diagnósticos urbanos se han implementado herramientas tecnológicas que han permitido obtener datos con mayor precisión, pero las técnicas de interpretación son casi siempre las mismas, la lectura sistémica y compleja del barrio a veces no se hace. El presente estudio, se realizó en el barrio Víctor Emilio Valdivieso de la ciudad de Loja-Ecuador, ubicado en un sector periférico, en un contexto natural de protección ecológica con problemas físico-espaciales y sociales. El objetivo fue tomar como metáfora al cuerpo humano y relacionarlo con los sistemas urbanos y los conceptos de apoptosis y necrosis desarrollados en medicina, a los resultados se les añadió técnicas cualitativas como los talleres participativos y otras que permitieron explorar a través de la metáfora interpretaciones creativas. El sistema social se pensó como el sistema nervioso; el tejido urbano y amanzanamiento como el sistema muscular; el sistema circulatorio y respiratorio como el espacio público y los espacios verdes; la red vial y la geomorfología fueron concebidas como el sistema óseo. Se consideraron tres hitos temporales: 2014, 2020, 2023. La analogía conceptual permitió identificar que los sistemas nervioso y muscular iniciaron un proceso necrótico que debe tratarse, puesto que existen espacios de inseguridad, así como la perdida de áreas verdes en el espacio público, también se determinó que gran parte del terreno no debió urbanizarse. Los sistemas respiratorio y circulatorio funcionan saludablemente en un proceso apoptótico debido a la organización social y presencia de un contexto natural que aún funciona. El sistema óseo se considera en remisión. En síntesis, el recurso utilizado despierta la creatividad para los análisis urbanos, así como la comprensión de su «estado de salud o enfermedad» desde la mirada física y socio-espacial.

Palabras clave: barrios, interpretación, espacio urbano, diagnóstico urbano, analogía.


Abstract

In urban diagnostics, technological tools have been implemented that have allowed for more precise data collection, but the interpretation techniques are almost always the same, and a systematic and complex understanding of the neighborhood is sometimes lacking. This study was conducted in the Víctor Emilio Valdivieso neighborhood of Loja, Ecuador, located in a peripheral area, in a natural ecological protection context with physical-spatial and social challenges. The objective was to use the human body as a metaphor and relate it to urban systems and the concepts of apoptosis and necrosis developed in medicine. Qualitative techniques such as participatory workshops and others that allowed for creative interpretations to be explored through metaphor were added to the results. The social system was conceived as the nervous system; the urban fabric and block structure as the muscular system; the circulatory and respiratory systems as public and green spaces; and the road network and geomorphology were conceived as the skeletal system. Three temporal milestones were considered: 2014, 2020, 2023. The conceptual analogy allowed us to identify that the nervous and muscular systems began a necrotic process that must be treated, given the existence of unsafe spaces, as well as the loss of green areas in public spaces. It was also determined that a large part of the land should not have been urbanized. The respiratory and circulatory systems function healthily in an apoptotic process due to social organization and the presence of a still-functioning natural context. The skeletal system is considered to be in remission. In short, the resource used sparks creativity for urban analyses, as well as an understanding of their "state of health or disease" from a physical and socio-spatial perspective.

Keywords: neighborhoods, interpretation, urban space, urban diagnosis, analogy.


Resumo

Ferramentas tecnológicas foram implementadas em avaliações urbanas que permitiram uma coleta de dados mais precisa, mas as técnicas de interpretação são quase sempre as mesmas; às vezes não se consegue uma compreensão sistemática e complexa do bairro. Este estudo foi realizado no bairro Víctor Emilio Valdivieso de Loja, Equador, localizado em uma área periférica em um contexto natural de proteção ecológica com problemas físico-espaciais e sociais. O objetivo era usar o corpo humano como metáfora e relacioná-lo aos sistemas urbanos e aos conceitos de apoptose e necrose desenvolvidos na medicina. Os resultados foram complementados por técnicas qualitativas, como oficinas participativas e outras que permitiram explorar interpretações criativas por meio de metáforas. O sistema social era considerado o sistema nervoso; o tecido urbano e de quarteirão como sistema muscular; os sistemas circulatório e respiratório, como espaços públicos e espaços verdes; A rede rodoviária e a geomorfologia foram concebidas como o sistema esquelético. Foram considerados três períodos de tempo: 2014, 2020, 2023. A analogia conceitual permitiu identificar que os sistemas nervoso e muscular iniciaram um processo necrótico que deve ser tratado, visto que há espaços de insegurança, bem como a perda de áreas verdes em espaços públicos. Também foi determinado que uma grande parte do terreno não deveria ser urbanizada. Os sistemas respiratório e circulatório funcionam saudavelmente em um processo apoptótico devido à organização social e à presença de um contexto natural ainda funcional. O sistema esquelético é considerado em remissão. Em suma, o recurso utilizado desperta a criatividade para a análise urbana, bem como a compreensão do seu “estado de saúde ou doença” sob uma perspectiva física e socioespacial.

Palabras-chave: bairros, interpretação, espaço urbano, diagnóstico urbano, analogía.


Introducción

El barrio Víctor Emilio Valdivieso (VEV) de la ciudad de Loja-Ecuador, es un barrio periférico con un imaginario negativo en su tejido social. En el ámbito espacial se observan las pendientes escarpadas por su geomorfología, así como la pérdida de áreas verdes y las viviendas inacabadas debido a que sus habitantes son de bajos recursos económicos.

En los diagnósticos urbanos uno de los desafíos es la comprensión de las dinámicas urbanas mediante instrumentos teóricos que nos acerquen a esa realidad (Krieger, 2006). La sistematización y levantamiento de información con la tecnología actual es cada vez más completa, pero en la fase cualitativa es necesario potenciar algunos recursos como la metáfora, la analogía, la representación, la imagen, la historia (Viñan, 2008).

Abusaada y Elshater (2024) muestran que ha sido común el uso de la metáfora para estimular la imaginación de los arquitectos en la historia urbana y que propicia la innovación y mejora la comunicación arquitectónica.

La metáfora, funciona implícitamente para establecer sutilmente paralelos entre entidades dispares (Aristóteles, 1986). A través de la lengua las metáforas ayudan a expresar imágenes complejas (Ricoeur, 1981) consiguiendo ilustrar conceptos abstractos.

En esta investigación, a través del barrio VEV con limitantes morfológicas, sociales y económicas, el objetivo es interpretar de manera creativa los datos urbanos aplicando la metáfora conceptual y el pensamiento interdisciplinar, de esa manera surge la hipótesis de que las ciudades y los barrios funcionan como sistemas complejos y requieren la comprensión de su funcionamiento, para lo cual es posible apoyarse en analogías e interpretaciones conceptuales. Surge entonces la siguiente interrogante principal: ¿Cómo determinar el estado real de un barrio desde una óptica integral que permita constituir similitudes entre categorías, partes o subsistemas distintos? Y otras complementarias: ¿Pensar de manera compleja es aún un desafío y limita el análisis? ¿El pensamiento lineal limita la creatividad en los estudios urbanos? ¿Es posible colegir conceptos de las disciplinas biológicas para pensar en asentamientos humanos?

Los resultados se sistematizaron y fueron analizados a través de los conceptos de apoptosis y necrosis, de los cuales se ampliará su significado más adelante, para conocer el «estado de salud» del barrio.

La lógica de este artículo es iniciar con la base teórica, luego se describe la metodología utilizada, más adelante los resultados se organizaron para que cada sistema de análisis tenga su interpretación metafórica, después se presenta la discusión que profundiza la interconexión de conceptos de varias disciplinas y que revela la ayuda significativa en la identificación de estrategias para la propuesta, así como sus limitantes. Finalmente en las conclusiones se sintetizan los aspectos relevantes.


Marco teórico

La metáfora es una herramienta lingüística que emplea una figura retórica objetual o conceptual. El diccionario de la Real Academia Española define el término como “Traslación del sentido recto de una voz a otro figurado, en virtud de una comparación tácita” (Real Academia Española, 2014) siendo la comparación y la imagen literal o conceptual el eje central del significado.

Actualmente en la comprensión urbana es común ver muchas formas de análisis desde otras disciplinas, tomando los conceptos e infiriéndolos a la ciudad. Avances científicos como la complejidad y la autoorganización, base técnica de la informática y su aplicabilidad en otras disciplinas, son normalmente utilizados. (Johnson, 2003; Turing, 1990).

La teoría de los sistemas es aplicable para varios análisis, el sistema se considera un ente con límites, partes o elementos interrelacionados e interdependientes, cuya suma es más que solo la conexión de sus partes (Tamayo, 1999). El espacio urbano es complejo y requiere soluciones innovadoras, mentalidad abierta, voluntad de trabajar con otras disciplinas y perspectivas, dado que lo urbano incluye, produce, transforma y establece diferentes tipos de relaciones socioespaciales. (Alejandro et al., 2023; Li & Zeng, 2024; Martínez-Valdés, 2020; Mendes, 2019)

Rem Koolhaas expresa su pensamiento acerca de cualquier tema con distintas disciplinas, para lo que deconstruye su trabajo teórico y práctico, mostrándose como un arquitecto interdisciplinar que le ha permitido desarrollar una percepción interescalar de fenómenos urbanos. (Yazici y Durmus, 2023).

Peter Eisenman, arquitecto que escribe en la memoria del proyecto Biocentro para la universidad de Frankfurt en 1987 de manera clara y explícita la utilización de elementos y conocimientos fuera del campo disciplinar como procesadores de las formas geométricas, explora el uso de la analogía, profundiza en características funcionales, microscópicas de los elementos y las formas que le asignan los científicos. (Giménez, 2011, p. 81)

Chayaamor-Heil, y Vitalis (2021) en su estudio de la biología y arquitectura sostienen que las teorías abstractas podrían transformarse en modelos, así, por ejemplo, para las ciencias naturales funcionan tres categorías: el diseño, el análisis y la simulación, las mismas que son factibles extrapolarse a la arquitectura y el urbanismo. Asimismo, indican que los arquitectos afirman que recurren a la biología como nuevo conocimiento e inspiración para desarrollar estrategias de diseño.

En el presente estudio, se ha tomado para el análisis un proceso celular denominado apoptosis, esta palabra deriva del latín y significa «desprenderse» o «decaer», como las hojas de un árbol en otoño, es un proceso conocido como la «muerte celular programada». La apoptosis es normal y necesaria, estas células reciben mensajes desde algún lugar, induciéndolas a destruirse (National Human Genome, 1989). El antónimo de la apoptosis en biología se denomina necrosis, que es el proceso por el cual mueren las células sanas, contrario a la apoptosis en donde mueren las células que han cumplido su tiempo de vida.

En el barrio se podría colegir que la apoptosis se cumple cuando el barrio es dinámico, organizado, sus sistemas se autoorganizan, o por lo contrario se necrotizan cuando se desequilibra o se empieza a degenerar y destruir.


Estudio de caso

La ciudad de Loja se ubica en la región interandina del Ecuador en los paralelos 3º50’ y 4º de Latitud Sur (Programa de las Naciones Unidas para el Medio Ambiente et al., 2007). Forma parte de la Reserva de la Biosfera Podocarpus-Cóndor Mirador, declarada por la UNESCO en el año 2007, esta designación reconoce en las provincias de Loja y Zamora Chinchipe su gran biodiversidad de bosques andino-tropicales (Municipio de Loja, 2019).

Por ser una ciudad andina está rodeada por las cordilleras oriental y occidental de los Andes, con imponentes paisajes de montañas, pre-montañas, colinas y valles, que dan forma a la hoya de Loja, así como por un sistema hidrológico de ríos y quebradas presentes en casi todos los barrios (Figura 1).


Figura 1
Imagen de la cordillera oriental de la ciudad de Loja, vista desde el barrio Víctor Emilio Valdivieso


El barrio Víctor Emilio Valdivieso (figura 2), se encuentra junto a áreas de protección de remanentes de hábitats protegidos por el Estado como el bosque protector de la cordillera occidental (Ministerio de Ambiente del Ecuador, 2012). El barrio nace en 1995, la familia de VEV donó un terreno de 15,87 ha. a la Curia de Loja y el acuerdo fue servir a los más pobres. En 1996, tras realizarse la lotización y la apertura vial, se efectúa el sorteo de los predios. Los beneficiarios eran pobladores en extrema pobreza, muchos llegaron a vivir armando con palos y plásticos su vivienda. En estas circunstancias los promotores del proyecto obviaron el análisis técnico de las características del terreno, dándole más énfasis a su intención solidaria que a las condiciones topográficas. Pese a las dificultades de la planificación del proyecto y a la permisividad municipal, cabe recalcar que se diseñaron franjas verdes públicas, algo no común en las urbanizaciones de la ciudad. Entre las consecuencias de obviar los parámetros de la planificación urbana resaltan las dinámicas socio espaciales negativas, y que hoy se traducen en inseguridad en ciertos espacios del barrio afectando la calidad de vida de todos sus habitantes.


Figura 2
Ubicación del barrio a nivel de Sudamérica, Ecuador, Loja



Metodología

Para el diagnóstico se aplicaron los métodos analítico y sintético, que tradicionalmente se usan para obtener resultados, luego se exploró a través del método cualitativo, técnicas y herramientas que coadyuvaron a la interpretación metafórica y creativa, propuesta de esta investigación, detalladas a continuación:

1. Observación directa no participante. Con la técnica de fichaje aplicados en tres hitos temporales: 2014, 2020, 2024, que permitieron obtener datos comparativos.

2. Talleres participativos. Desarrollados con la comunidad. Mapeos y recorridos in situ. En total 6 talleres, 2 en cada hito temporal. Fue necesario interpretar gráficos y croquis realizados por la gente, así como mapear y encontrar patrones en palabras escritas y orales de los participantes, resultados que fueron plasmados principalmente en mapas de calor.

3. Mapeos. Con base al Plan de Desarrollo y Ordenamiento Territorial (PDOT) (Figura 3) de la Ilustre Municipalidad de Loja y Sistemas de Información Geográfica (SIG). Para el análisis de áreas verdes se tomaron los mapas históricos relevados por medición, la observación directa complementadas con datos del Google Earth de los años 2014 y 2020, sobre los cuales se realizaron levantamientos y actualizaciones en sitio, mediante el trabajo de campo.


Figura 3
Ortofoto del barrio Víctor Emilio Valdivieso


A través de la metáfora se interpretan los resultados relacionando los sistemas urbanos con los sistemas del cuerpo humano (Figura 4) se precisaron tres sistemas vitales: el sistema vial como una analogía del esqueleto que estructura y soporta unido al sistema muscular como su relieve; el sistema circulatorio y el respiratorio fueron pensados como el espacio público y las franjas verdes debido a que permiten la purificación del espacio. El sistema social con el sistema nervioso que crea relaciones y conexiones vivas que actúan ante diferentes estímulos o situaciones.


Figura 4
El cuerpo humano y su funcionamiento orgánico como metáfora del funcionamiento del barrio


Entonces, en el diseño metodológico conforme al marco teórico se inició con la deconstrucción sistémica del barrio, se consideraron tres:

a. El sistema verde, que proporciona la oxigenación y equilibra la funcionalidad del espacio.

b. El sistema vial, por ser el entramado que conecta, comunica, sostiene y hace que el barrio fluya.

c. El sistema social, sin el cual no podrían existir los anteriores.

El uso de la metáfora como técnica interpretativa del método cualitativo requiere lecturas y comprensión previa del pensamiento complejo para evitar reduccionismos que limitarían la creatividad.


Resultados


En el sistema verde

En los barrios y ciudades existe una estrecha relación entre lo natural y el espacio construido por el hombre (Higueras, 2009), el barrio VEV tiene una topografía no recomendable para urbanizar; no obstante, la población se adaptó y construyó allí sus viviendas. Los rangos de pendientes (Figura 5) mayoritariamente (el 71%) están sobre el rango aconsejable. (Tabla 1)


Tabla 1
Rangos de pendientes topográficos con respecto al área total


Figura 5
Relieve del barrio y su contexto natural (quebradas, bosque protector occidental)


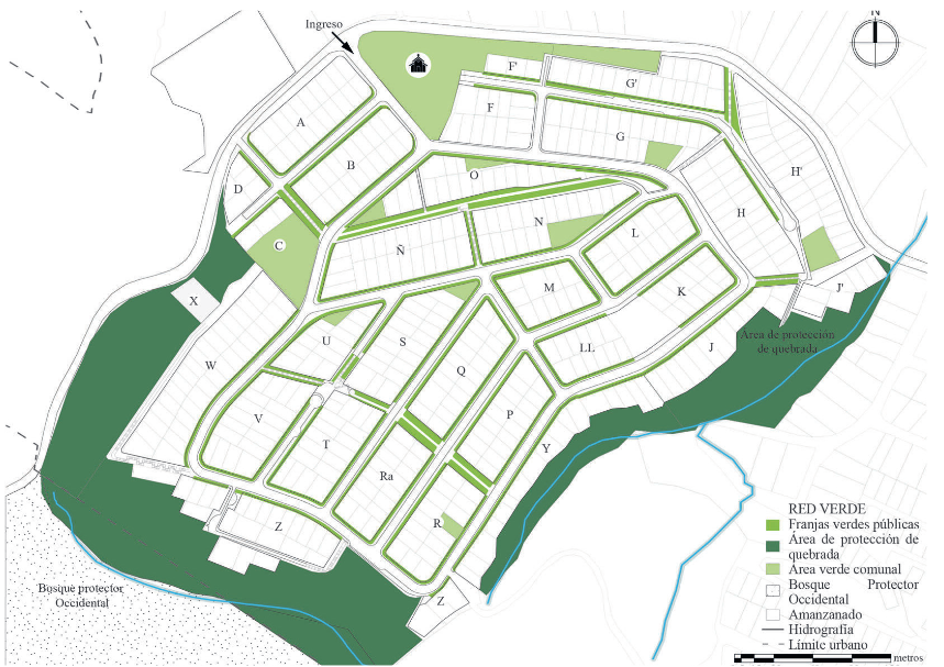
El sistema verde con una superficie de 84.830 m2 se encuentra cubierto de vegetación alta, baja, con variedad de especies, incluye 10 áreas verdes comunales, 2 áreas de protección, 1 fragmento del bosque protector occidental y una red de franjas verdes públicas (Figura 6), se evidencia una disminución de áreas verdes entre el 2020 y el 2023 (Tabla 2). Los factores que inciden en esta pérdida son las acciones humanas, la fragmentación, falta de control municipal e irrespeto a las ordenanzas.

Figura 6
Sistema verde, se observan las franjas verdes públicas, así como los bordes de manzanas


Desde la presente aproximación conceptual, este sistema revela que la regeneración saludable del barrio o apoptosis no funciona adecuadamente, existe el inicio de una necrosis que podría devenir en la pérdida total del sistema verde de no ser controlada y regenerada estratégicamente. Se observa como resultado el cambio de la imagen urbana, así como la fragmentación del tejido vegetal que bordean cada manzana (Figuras 7) lo que afecta al sistema verde integral del barrio visto desde su vocación ecológica prístina al estar cerca del bosque protector occidental de gran importancia para la conservación ecosistémica de la ciudad de Loja.


Figura 7
Franjas verdes públicas conservadas (año 2014). Afectación mediante impermeabilización de franjas verdes


Se evidencia una progresiva disminución de las áreas verdes en los 3 períodos de estudio, con una pérdida entre el 2014 y 2020 del 8,32 m2/hab., y entre el 2020 y 2023 de 0,05m2/hab., principalmente debido a la toma ilegal de estos espacios. En total la pérdida de áreas verdes suma un 19,76% con respecto al levantamiento inicial en el 2014 (Tabla 2)

Sin embargo, la afectación no solamente es cuantitativa sino que se está perdiendo el cuidado y apropiación del espacio por parte de la comunidad


Tabla 2
Disminución progresiva de áreas verdes


En el sistema vial

El sistema vial (figura 8), base para la transportación pública y accesibilidad vehicular y peatonal, se desarrolla en pendiente fuertes, constan 10 vías locales con un ancho de entre 4,5 y 5,5 metros; 3 vías colectoras de 6,5 metros de ancho; 3 calles peatonales de 2 metros de ancho, 1 arterial de 12 metros de ancho, además 11 escalinatas de entre 30 y 100 metros lineales. Las pendientes con un rango del 0% al 12% constituyen el 19% de la superficie total. Entre el 12% y 70% de la pendiente cubren el 71% del territorio del barrio. Y, pendientes muy fuertes y escarpadas que van entre el 70% y 100% son el 10% del área total


Figura 8
Red vial e hidrografía

Las pendientes forzadas originan muchos conflictos viales, radios de giro problemáticos para los buses de transportación pública (figura 9), dificultad en la maniobra vehicular en vías de dos sentidos por su sección de 5,5 metros, además no hay lugares de estacionamiento temporal.


Figura 9
Ancho de vías mínimas (5.5 m.) colectoras y locales con conflictos de transporte público. Esca-linatas tipo, que salvan pendientes pronunciadas


La movilidad peatonal, también se ve afectada por las fuertes pendientes debido a que la población debe caminar en aceras muy inclinadas con accesos difíciles hacia sus viviendas, la conectividad peatonal por medio de escalinatas cuyo desarrollo y longitud salva pendientes pronunciadas son muy agotadoras (figura 9).

Considerando el relieve y sistema vial como el esqueleto y musculatura del barrio, podemos observar que el sistema óseo desde su nacimiento tiene muchas restricciones, en este sentido adolece de cierta «debilidad corporal» que dificulta la funcionalidad del barrio.


En el sistema social

El último censo en el año 2010 Instituto Nacional de Estadística y Censos [INEC] registra 2484 habitantes en el sector y una tasa de crecimiento poblacional del 2,27%, con esta referencia, la proyección actual poblacional es de 3484 habitantes, del cual los grupos poblacionales más significativos son de 4 a 24 años, con 1682 habitantes cubriendo un porcentaje de 48,30%. La población mayoritaria es joven, principalmente niños y adolescentes. El 61% de la población, es decir 2125 habitantes tienen trabajos de baja remuneración (menos de $ 300 dólares mensuales), peón o jornalero, recicladores, ventas ambulantes, empleadas domésticas. El 31% de la población tiene ingresos básicos ($ 450 dólares) como empleado público o privado, son 731 habitantes. El nivel de educación es bajo, el 43,94%, 1531 habitantes únicamente tienen una instrucción primaria, el 23,07% secundaria, es decir 804 habitantes. Solamente 215 habitantes, un 6,18% tiene educación superior, el resto suman educación en centro de alfabetización y analfabetismo.

En el ámbito social, el barrio cumple de manera interesante un principio dinámico y organizativo. Cada manzana tiene un líder que actúa como vocero, quien se encarga de comunicar y resolver los problemas de vecindad, estos líderes van rotando en concordancia con la directiva central, esta actividad es propia del sector. La comunidad de ese modo actúa en la resolución de los problemas, genera nuevas iniciativas y actividades en beneficio del barrio y del bien común.

La calle nos revela una autoorganización social, como un espacio lúdico para niños y jóvenes que se posibilita debido al bajo flujo vehicular.

Tras un taller de diagnóstico participativo realizado en 2020, se identificaron los lugares que generan mayor inseguridad en los vecinos del barrio, se catalogaron según la intensidad de peligrosidad y riesgo por falta de iluminación, así como espacios degradados con actividades clandestinas y apropiación de espacios por grupos de jóvenes y adultos infractores de leyes. También se identificaron las zonas peligrosas durante la noche y el día. Los resultados indican que estos espacios coinciden con las áreas verdes deterioradas, imagen urbana degradada y transgresión de leyes en cuanto al consumo y venta de licor, así como de sustancias sujetas a control, además son lugares con violencia urbana que crean temor al transitarlos (figura 10).


Figura 10
Lugares considerados peligrosos por la comunidad


De manera gráfica y sucinta, en el siguiente mapa de calor (figura 11) se sintetizan los resultados de los sitios apoptóticos y necrosados del barrio, se visualiza la apoptosis en las áreas verdes y el espacio público y necrosis en sitios que han sido tomados por grupos delincuenciales que generan inseguridad.


Figura 11
Sitios apoptóticos y necrosados del barrio


Discusiones

En el ámbito urbano el uso de la metáfora, en algunos casos, es un recurso utilizado de manera implícita, aunque no se lo desarrolle en todo su potencial, así Yazici y Durmus (2023) en su análisis de los discursos de Rem Koolhaas examinaron los códigos lingüísticos de sus escritos, determinando que las palabras más recurrentes eran ciudad, espacio basura, arquitectura, edificio, mundo, compras, y aparece la palabra metáfora en su discurso asociada a la ciudad y la metrópolis.

Rodríguez et al. (2020) en su estudio acerca de la literatura científica del contexto urbano confirman que nuestro sistema conceptual es sobre todo metafórico, por ello ha sido posible introducir en el ámbito urbano palabras como tejido y red, que son de uso cotidiano y que pueden ayudar en la comprensión de términos más complejos como producción en red por ejemplo, recurrir entonces a este desarrollo conceptual cotidiano se convierte en una herramienta necesaria para comprender la complejidad de manera simple.

De los resultados expuestos se resalta en el siguiente resumen (Tabla 3) el análisis cualitativo aplicando la metáfora en los sistemas seleccionados, sus causas, consecuencias y estrategias. Muestra que el «sistema respiratorio y circulatorio del barrio», es decir la organización y liderazgo social funcionan saludablemente, en los dos casos debido a la presencia de espacios verdes en el tejido urbano, lo cual ha permitido la mejora en el paisaje urbano y detener la degradación moral del barrio.

Los sistemas «muscular y nervioso» no están funcionando adecuadamente, debido a la presencia de grupos sociales que participan en actividades ilegales, sumado al bajo nivel de educación y poder adquisitivo de la mayoría de la población, lo cual ha propiciado la invasión del espacio público y aparición de zonas peligrosas.

Volviendo a la metáfora y considerando que el cuerpo humano cambia y se regenera, es posible mitigar y cambiar los procesos a través de estrategias, lo importante es identificarlas. El «sistema óseo» se lo ha considerado en remisión porque ya no puede modificarse, su funcionamiento solo puede mitigarse.

Luego de identificar los sistemas, causas y consecuencias, de no aplicar las estrategias propuestas es posible el incremento de espacios inseguros, la pérdida progresiva de áreas verdes en el tejido urbano y el riesgo de que las nuevas generaciones repliquen los comportamientos perjudiciales.


Tabla 3
Resultados con base a la metáfora


La sistematización de los datos de manera tradicional es también importante y necesaria, pero muchos de los aspectos de la planificación urbana se beneficiarían con el uso de la metáfora, como se muestra a continuación (Tabla 4):


Tabla 4
Aporte del método cualitativo a través de la metáfora en la planificación urbana


¿Cómo propiciar la apoptosis en el barrio?, los diagnósticos urbanos deberían hacerse cada cierto tiempo para detectar el grado de salud del barrio, sin perder de vista que los sistemas actúan coordinadamente, que todo se entrelaza.

La dicotomía apoptosis y necrosis ha permitido determinar que los sistemas se pueden regenerar o dañar dependiendo del patrón que tome fuerza porque crece y va contaminando o por lo contrario va mejorando, este aspecto al ser previsivo aporta para utilizarlo en la planificación urbana.

El sistema natural y el social analizados son dos potencialidades del barrio, pues se ha detectado aspectos muy positivos o apoptósicos, pero asimismo hay situaciones necróticas que requieren atención inmediata para que el patrón no se multiplique, sino que empiece a controlarse y sanarse.

La lectura metafórica de esta investigación ayudó a establecer que las acciones de reparación no tienen que ver solamente con intervenciones de fragmentación sino, todo lo contrario, con la preservación del ecosistema natural y/o reconectarlo.

Aunque frecuentemente se ha usado de manera implícita la metáfora en la arquitectura y el diseño del espacio abierto a lo largo de la historia, es necesario que los arquitectos y urbanistas desarrollen el pensamiento interdisciplinar; así, la teoría base sistémica, el aporte de los talleres participativos, la importancia de un hábitat sostenible, son componentes necesarios para la aplicación de la lectura metafórica, sin ese conocimiento hay el riesgo de simplificación.

Este recurso despierta la creatividad al concebir nuevas interrogantes o formular de manera distinta las preguntas comunes, se ha desarrollado con el hombre, pero la tecnología y el pensamiento lógico lo están disipando, por eso se recomienda potenciar su uso a través de líneas de investigación relacionadas con el ecosistema y fragmentación de los barrios, normativas urbanas, organización social y espacio público.


Conclusiones

Los espacios identificados como enfermos o necróticos pueden rehabilitarse con medidas específicas, permitiendo la regeneración espacial, restaurando o reactivando espacios degradados, empezando por las zonas que requieren atención inmediata, ya sea en lugares vacíos, residuales o degradados, en todos los casos, su efectividad depende del tiempo y costos económicos (Pérez, 2016), su regeneración permite en el tejido urbano «curar» los espacios «enfermos» que generan conflictos y diferencias sociales (Naghibi et al., 2020).

El sistema natural, así como las franjas verdes públicas, se están perdiendo progresivamente por la ausencia de control municipal y educación para el medio ambiente.

El sistema social es singular, se autoorganiza y de esta manera ha conseguido dinamismo y cohesión social, aunque aún existen comportamientos que deben tratarse.

El sistema vial ya no se puede cambiar, solo mitigar con acciones de señalética y señalización.

Se considera una potencialidad el contexto natural del barrio, se identificaron como estrategias inmediatas las acciones de renaturalización de franjas verdes públicas, intervenciones tácticas y uso del color, iluminación, diseño y construcción de mobiliario urbano menor y juegos infantiles, entre las más importantes, para activar y mejorar espacios degradados.

La herramienta analógica conceptual que se propone en la presente investigación ayuda a modificar la lectura tradicional de los sistemas urbanos en donde los problemas están catalogados o codificados. Así, por ejemplo, en el ámbito de la planificación es importante dar valor a las funciones naturales, que se regeneran manteniendo un equilibrio ecosistémico, en las cuales es posible conocer y comprender su funcionamiento natural. Asimismo, las normativas de la planificación urbana no son genéricas ni es posible aplicarlas de manera burocrática sin una observación e interpretación exhaustiva; por tanto, se sugiere emplear la metáfora como herramienta de análisis para el planteamiento de políticas y estrategias de planificación reales.

De no existir un pensamiento sistémico, interdisciplinar y sostenible en la aplicación de la metáfora es muy probable la simplificación en la interpretación de datos.

El presente trabajo sugiere futuras investigaciones para explorar los alcances de la investigación cualitativa a través de la metáfora, por ejemplo: “Normativas dinámicas y flexibles en la planificación urbana aplicando la metáfora”, “La metáfora en la fragmentación urbana”, “La metáfora en la preservación y recuperación de los sistemas verdes urbanos”, entre otras.


Notas:

Aprobación final del artículo
Ma. Arq. Andrea Castro Marcucci, editora en jefe aprobó la publicación de este artículo.

Contribución de autoría
Silvia Alexandra Viñan Ludeña: La autora ha participado en los procesos de Conceptualización, responsable del proyecto de investigación, curaduría de la información, análisis formal de la obra o proyecto, investigación, metodología, planificación, supervisión, preparación del manuscrito, elaboración del manuscrito, revisión y edición del manuscrito, fotógrafos.
Alexandra del Rosario Moncayo Vega: La autora ha participado en los procesos de Conceptualización, responsable del proyecto de investigación, curaduría de la información, análisis formal de la obra o proyecto, investigación, metodología, adquisición de fondos, planificación, supervisión, preparación del manuscrito, elaboración del manuscrito, revisión y edición del manuscrito.


Referencias

ABUSAADA, H., ELSHATER, A. (2024). Stimulating architects’ mental imagery reaching innovation: Lessons from urban history in using analogies and metaphors. Ain Shams Engineering Journal, Volume 15, Issue 9. https://doi.org/10.1016/j.asej.2024.102933.

ALEJANDRO, J., CAMPOS, M., & OSUNA, E. (2023). La interdisciplinariedad del diseño mediante el aprendizaje colaborativo y basado en proyectos. Zincografía, 14, 111–130. https://doi.org/10.32870/zcr.v7i14.218

ARISTÓTELES, A. (1986). De anima (Sobre el alma). Londres: Penguin. https://scholar.google.com/scholar_lookup?title=De%20Anima%20&publication_year=1987&author=Aristotle.

CHAYAAMOR-HEIL, N., VITALIS, L. (2021). Biology and architecture: An ongoing hybridization of scientific knowledge and design practice by six architectural offices in France. Frontiers of Architectural Research, Volume 10, Issue 2, 240-262. https://doi.org/10.1016/j.foar.2020.10.002.

GIMÉNEZ, C., MIRÁS, M. y VALENTINO, J. (2011). La Arquitectura cómplice: teorías de la arquitectura en la contemporaneidad (1ª ed.). Buenos Aires: Nobuko.

HIGUERAS, E. (2009). La ciudad como ecosistema urbano. El reto de la ciudad habitable y sostenible. Madrid: Editorial DAPP. https://oa.upm.es/16625/1/Ecosistema.pdf

Instituto Nacional de Estadística y Censo [INEC]. (2010). Análisis de datos censales: Estructura de la población. Redatam. http://redatam.inec.gob.ec/cgibin/RpWebEngine.exe/PortalAction?BASE=CPV2010

JOHNSON, S. (2003). Sistemas emergentes o que tienen en común hormigas, neuronas, ciudades y software (1ª ed. en castellano). Madrid: Turner Publicaciones, S.L.

KRIEGER, P. (2006). Paisajes Urbanos: imagen y memoria. México: UNAM, Instituto de Investigaciones Estéticas.

LI, K., & ZENG, H. (2024). Multidisciplinary parameters for characterizing the 3D urban morphology: An overview based on the relational perspective. Sustainable Cities and Society, 106(March), 105364. https://doi.org/10.1016/j.scs.2024.105364

MARTÍNEZ-VALDÉS, V., RIVERA, S., GONZÁLEZ, E. J., & Rivera, E. S. (2020). Parques urbanos: un enfoque Para su estudio como espacio Público, Urban parks: perspectives from studies of public space. Intersticios Sociales, 19, 67–86. https://orcid.org/0000-0001-8371-0996

MENDES, M., DARLING, A., HART, K., MORSE, S., MURPHY, R., & LANHAM-NEW, S. (2019). Impact of high latitude, urban living and ethnicity on 25-hydroxyvitamin D status: A need for multidisciplinary action? Journal of Steroid Biochemistry and Molecular Biology, 188(September 2018), 95–102. https://doi.org/10.1016/j.jsbmb.2018.12.012

Ministerio de Ambiente del Ecuador. (2012). Sistema de clasificación de los ecosistemas del Ecuador continental. Subsecretaría de Patrimonio Natural. Quito. https://www.ambiente.gob.ec/wp-content/uploads/downloads/2012/09/LEYENDA-ECOSISTEMAS_ECUADOR_2.pdf

Municipio de Loja. (2019). Plan de Desarrollo y Ordenamiento Territorial del Cantón Loja (PDOT). https://www.loja.gob.ec/files/image/LOTAIP/pdot-2019_2023.zip

NAGHIBI, M., FAIZI, M. y EKHLASSI, A. (2020). The role of user preferences in urban acupuncture: Reimagining leftover spaces in Tehran, Iran. Urbani izziv. Slovenia: Editorial Urbani izziv, 31(2), 114-126. https://doi.org/10.5379/urbani-izziv-en-2020-31-02-005

National Human Genome: Research Institute. (1989). Apoptosis. https://www.genome.gov/es/genetics-glossary/Apoptosis

PÉREZ, A. (2016). Acupuntura urbana: intervención en la ciudad y participación: cuatro experiencias [Tesis Doctoral, Universitat Politècnica de València]. https://riunet.upv.es/handle/10251/69334

Programa de las Naciones Unidas para el Medio Ambiente [PNUMA]; IIustre Municipio de Loja; y Naturaleza y Cultura Internacional. (2007). Perspectivas del Medio Ambiente Urbano: GEO Loja. Loja: PNUMA.

Real Academia Española [RAE]. (2014). Diccionario de la lengua española, 23.ª ed., [versión 23.7 en línea]. https://dle.rae.es

RICOEUR, P. (1981). Hermenéutica y ciencias humanas: ensayos sobre el lenguaje, acción e interpretación. Cambridge University Press. https://scholar.google.com/scholar_lookup?title=Hermeneutics%20and%20the%20human%20sciences&publication_year=1981&author=P.%20Ricoeur

RODRÍGUEZ, L., PAULSEN-ESPINOZA, A., & HIDALGO-DATTWYLER, R. (2020). Situar en el debate el contexto urbano. Aproximaciones bibliométricas desde el meta análisis de la literatura científica. Urbano, 23(41), 10-25. https://doi.org/10.22320/07183607.2020.23.41.01

TAMAYO, A. (1999). Teoría general de sistemas. NOOS. Revista del departamento de ciencias. Manizales: Editorial Universidad Nacional de Colombia - Sede Manizales, 8, 84-89. https://bit.ly/3xa295z

TURING, A. (1990). The chemical basis of morphogenesis. Bulletin of mathematical biology, 52, 153-197. https://doi.org/10.1007/BF02459572

YAZICI, M., DURMUS, S. (2023). An analysis of Rem Koolhaas's discourses on architecture and urban design using a corpus-based model. Frontiers of Architectural Research, Volume 12, Issue 2, 222-241. https://doi.org/10.1016/j.foar.2022.08.003.

Viñan, S. (2008). Entre lo visible e invisible. [Tesis de Maestría, Universidad Nacional Autónoma de México]. https://repositorio.fa.unam.mx/handle/123456789/17480


Fuentes de las ilustraciones

Fuente Figura 1: Las autoras.

Fuente Figura 2: Elaboración propia.

Fuente Figura 3: Sistemas de Información Geográfica de la Municipalidad de Loja, 2023.

Fuente Figura 4: Elaboración propia.

Fuente Figura 5: Elaboración propia.

Fuente Figura 6: Elaboración propia.

Fuente Figura 7: Elaboración propia.

Fuente Figura 8: Elaboración propia.

Fuente Figura 9: Las autoras.

Fuente Figura 10: Elaboración propia.

Fuente Figura 11: Elaboración propia.